
ohne-makler.net - Immobilien selbst vermarkten
Privat vom Eigentümer
Kontaktiere den Anbieter schriftlich, es ist keine Telefonnummer hinterlegt.
Preise & Kosten
Provision für Käufer
provisionsfrei
Lage
Waldhöhenlage in herrlicher Umgebung mit netter Nachbarschaft, die auch zum Teil ganzjährig anwesend ist - keine Alleinlage!
Infrastruktur (im Umkreis von 5 km):
Lebensmittel-Discount
Das Haus
Baujahr
1975
Bezug
nach Absprache
Energie & Heizung
Warum sehe ich diese Anzeige? – Du siehst diese Anzeige basierend auf Ihrer Navigation auf unserer Website und den Suchkriterien, die du verwendet hast.
Energieausweis: für diesen Gebäudetyp nicht notwendig
Weitere Energiedaten
Energieträger
Elektro
Details
Objektbeschreibung
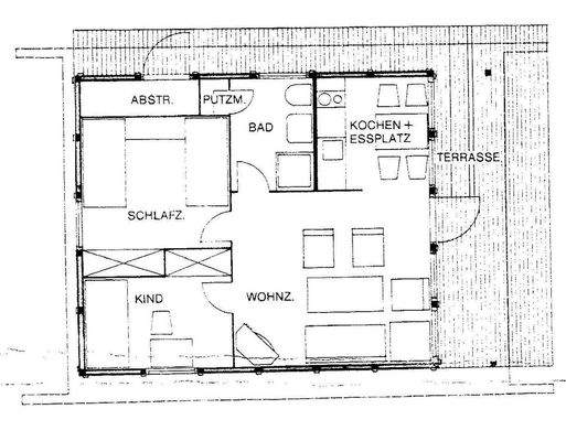
Pflegeleichtes, eingeschossiges Ferienhaus im Ferienhausgebiet mit umfangreichen Wanderwegen in die abwechslungsreiche Umgebung. Das Ferienhaus steht auf einem eigenen Waldgrundstück mit Baumbestand und individueller Nachbarbebauung. Ein Parkplatz und ein geräumiges Gartenhaus befinden sich auf dem Grundstück.
Ein...
Ausstattung
Balkon, Terrasse, Garten, Duschbad, Einbauküche, Laminat, Fliesen
Bemerkungen:
Das Ferienhaus verfügt über eine sonnige Terrasse, Balkon, Wohnzimmer mit offener Küche und Essplatz, 2 Schlafzimmer und Duschbad. Ein PKW-Stellplatz und ein geräumiges Gartenhaus befinden sich auf dem eigenen Grundstück.
Preisinformation
1 Stellplatz
Weitere Informationen
Sonstiges
Heizungsart: Sonstiges (s. Text)
Energieträger: Strom
Bitte sehen Sie von Anfragen ab, wenn Sie nicht über Eigenkapital in Höhe des Kaufpreises verfügen. Da es sich um ein Ferienhaus handelt, ist keine Bankfinanzierung möglich. Vor einem Besichtigungstermin ist daher ein Kapitalnachweis erforderlich...
Anbieter der Immobilie
ohne-makler.net - Immobilien selbst vermarkten
Humboldtstr. 25 A, 21509 Glinde
Privat vom Eigentümer
Dein Ansprechpartner
Kontaktiere den Anbieter schriftlich, es ist keine Telefonnummer hinterlegt.
Online-ID: 2nraw5l
Referenznummer: 239081
Finde Angebote wie dieses
Hier geht es zu unserem Impressum, den Allgemeinen Geschäftsbedingungen, den Hinweisen zum Datenschutz und nutzungsbasierter Online-Werbung.