

Engel & Völkers Hamburg Südost Immobilien GmbH
Firma ENGEL & VÖLKERS Ahrensburg
+49 ···
Nr. anzeigenPreise & Kosten
Provision für Käufer
3,57 % inkl. gesetzl. MwSt.
Lage
Die Waldgemeinde Großhansdorf liegt nordöstlich vor den Toren der Hansestadt Hamburg und grenzt direkt an Ahrensburg. Dank der U-Bahn-Linie U1, die Großhansdorf mit der Hamburger Innenstadt verbindet, ist die Gemeinde hervorragend an das öffentliche Verkehrsnetz angebunden. Großhansdorf zeichnet sich durch eine reizvolle...
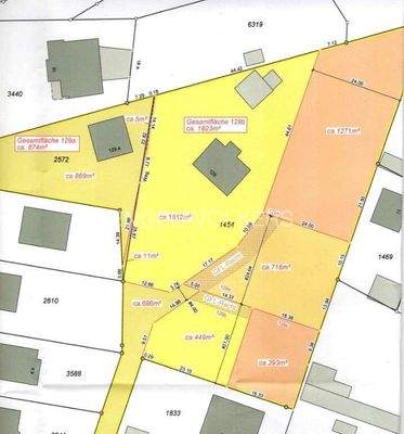
Das Grundstück
Details
Objektbeschreibung
Die insgesamt vier Grundstücke werden nur mit einer Bauträgerbindung für Noah-Haus zu den genannten Preisen verkauft. Eine entsprechende Vorplanung ist mit dem Bauamt und dem Bauträger abgestimmt. Vorbereitete Grundrisse, mögliche Bebauungen und vorbereitete Kaufverträge, mit Nennung der relevanten Grunddienstbarkeiten liegen...
Weitere Informationen
Sonstiges
Der Makler-Vertrag mit uns kommt durch die Bestätigung der Inanspruchnahme unserer Maklertätigkeit in Textform zustande, wie z.B. insbesondere die Unterschrift des Suchkundenvertrages und/oder des Objekt-Exposés. Die Höhe der Courtage richtet sich nach den ab dem 23.12.2020 in Kraft getretenen gesetzlichen...
Anbieter der Immobilie

Online-ID: 2nra45z
Referenznummer: W-047CTE
Finde Angebote wie dieses
Hier geht es zu unserem Impressum, den Allgemeinen Geschäftsbedingungen, den Hinweisen zum Datenschutz und nutzungsbasierter Online-Werbung.