

PIPPING Immobilien GmbH & Co. KG
Frau Rebecca Hans
+49 ···
Nr. anzeigenPreise & Kosten
Provision für Käufer
3,125 % inkl. USt.
Lage
Die Gemeinde Wentorf liegt etwa 20 km östlich der Hamburger Innenstadt und zählt zu den beliebtesten Lagen im Hamburger Speckgürtel.
Die direkte Nähe zum idyllischen Sachsenwald und zur Wentorfer Lohe bietet ein Maximum an Lebensqualität. Zahlreiche Golfclubs, der TTK Tontaubenklub Sachsenwald e. V. sowie weitere...
Das Haus
Kategorie
Doppelhaushälfte
Baujahr
1984
Energie & Heizung
Warum sehe ich diese Anzeige? – Du siehst diese Anzeige basierend auf Ihrer Navigation auf unserer Website und den Suchkriterien, die du verwendet hast.
Energieausweistyp
Bedarfsausweis
Gebäudetyp
Wohngebäude
Baujahr laut Energieausweis
2004
Wesentliche Energieträger
Gas
Gültigkeit
bis 15.01.2036
Effizienzklasse
F
Endenergiebedarf
161,20 kWh/(m²·a)
Weitere Energiedaten
Energieträger
Gas
Heizungsart
Zentralheizung
Details
Objektbeschreibung
Herzlich willkommen in dieser charmanten Doppelhaushälfte, welche Ihnen aufgrund der guten Raumaufteilung ein ideales Zuhause für die ganze Familie bietet. In verkehrsberuhigter Lage am Ende einer Sackgasse und umgeben von einem gepflegten, eingewachsenen Grundstück, erwartet Sie eine Immobilie mit Potenzial und viel Raum für...
Ausstattung
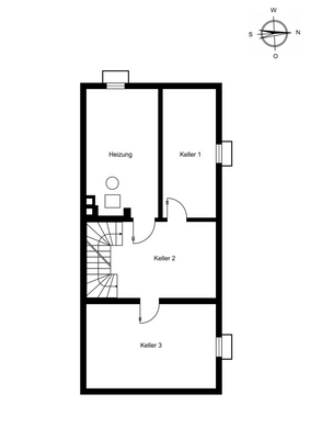
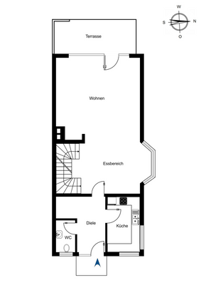
Erdgeschoss:
. Großzügiger Eingangsbereich mit Garderobe
. Separates Gäste-WC
. Küche im Retrostil mit Eckfenster und schönem Gartenblick
. Heller Wohn- und Essbereich mit Erker
. Bodentiefe Fensterfronten mit Zugang zur Terrasse
. Terrasse in sonniger Ausrichtung
. Möglichkeit zur Nachrüstung eines...
Weitere Informationen
Sonstiges
. ca. 472 m² Grundstück (im Sondernutzungsrecht)
. Liebevoll angelegter Garten mit immergrünen Beeten
. Großzügige Rasenfläche
. Alter Baumbestand im hinteren Grundstücksbereich
. Südwest-Ausrichtung
. Blickdicht eingewachsen - hohe Privatsphäre
. Großzügige Terrasse für entspannte Stunden im...
Anbieter der Immobilie
PIPPING Immobilien GmbH & Co. KG
Bahnhofstr. 12, 21465 Reinbek

Online-ID: 2nr9e5s
Referenznummer: RH-261112893
Finde Angebote wie dieses
Hier geht es zu unserem Impressum, den Allgemeinen Geschäftsbedingungen, den Hinweisen zum Datenschutz und nutzungsbasierter Online-Werbung.