

gut Immobilien GmbH
071 ···
Nr. anzeigenPreise & Kosten
Provision für Käufer
provisionsfrei
Lage
Ostelsheim liegt idyllisch zwischen Weil der Stadt und Böblingen - ein Ort, der Ruhe und Natur mit guter Erreichbarkeit verbindet.
Kindergarten, Grundschule, ein Norma Supermarkt sowie zwei Bäckereien befinden sich in Fußnähe.
Die Herrmann-Hesse-Bahn bietet Ihnen eine attraktive Anbindung nach Weil der Stadt und...
Das Haus
Kategorie
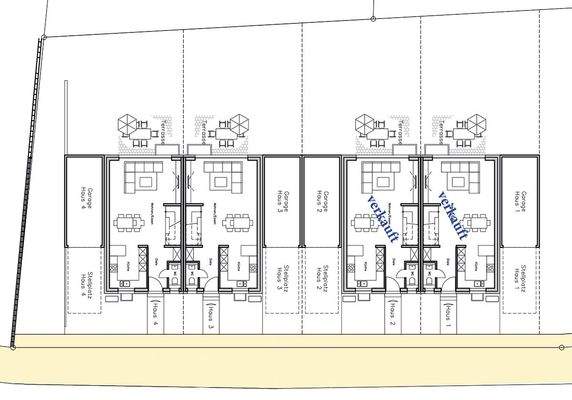
Doppelhaushälfte
Baujahr
2026
Energie & Heizung
Warum sehe ich diese Anzeige? – Du siehst diese Anzeige basierend auf Ihrer Navigation auf unserer Website und den Suchkriterien, die du verwendet hast.
Weitere Energiedaten
Haustyp
Massivhaus
Heizungsart
Fußbodenheizung, Luft-/Wasser-Wärmepumpe
Details
Objektbeschreibung
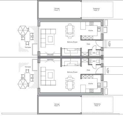
Diese attraktive Doppelhaushälfte entsteht in idyllischer Lage von Ostelsheim, in einem gewachsenen Wohngebiet mit viel Grün. Ein idealer Ort, an welchem sich die junge Familie sofort wohlfühlen wird.
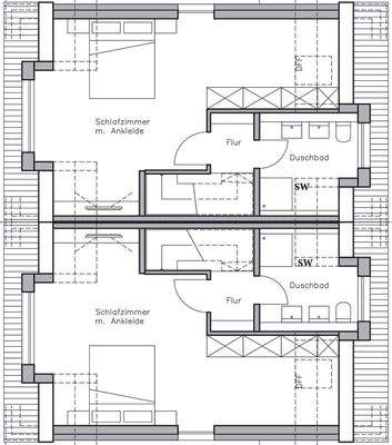
Hier vereinen sich moderne Architektur und durchdachte Grundrisse auf 157m² Wohnfläche.
Das Haus bietet auf mehreren...
Ausstattung
Das Haus ist bezugsfertig geplant. Alle Bodenbeläge, Malerarbeiten sowie elektrischen Rollläden sind im Preis enthalten. Sämtliche Zimmer sind mit Parkettboden ausgestattet.
Diese Doppelhaushälfte wird in sehr guter Massivbauweise (Stein auf Stein) mit 3-fach Verglasung, Fußbodenheizung, LWWP (GEG 2024) und...
Preisinformation
1 Stellplatz
1 Garagenstellplatz
Weitere Informationen
Sonstiges
Rufen Sie uns gleich an und vereinbaren Sie einen individuellen Besichtigungstermin.
Wir freuen uns von Ihnen zu hören!
Ihre Wünsche können in der Aufteilung noch berücksichtigt werden.
"Eine Gelegenheit für die junge Familie, großzügig und modern sowie mit herrlichem Sonnengarten und in...
Anbieter der Immobilie
Online-ID: 2nr975a
Referenznummer: 13307097
Finde Angebote wie dieses
Hier geht es zu unserem Impressum, den Allgemeinen Geschäftsbedingungen, den Hinweisen zum Datenschutz und nutzungsbasierter Online-Werbung.