
berlinraum
Frau Cornelia Noack
+49 ···
Nr. anzeigenPreise & Kosten
in Warmmiete enthalten
Kaution
3 Nettokaltmieten
Warum sehe ich diese Anzeige? – Du siehst diese Anzeige basierend auf Ihrer Navigation auf unserer Website und den Suchkriterien, die du verwendet hast.
Lage
Das Gebäude in der Pankstraße 57 liegt im Weddinger Ortsteil Gesundbrunnen. Gute Einkaufsmöglichkeiten sind in direkter Umgebung zu finden. Die Anbindung an den öffentlichen Nahverkehr ist über den U-Bahnhof 'Pankstraße' (U8), dem nahe gelegenen
Bahnhof 'Gesundbrunnen' (U-, S-, Regional- und Fernbahnen) sowie mehreren...
Die Wohnung
Wohnungslage
1. Geschoss
Bezug
sofort
Wohnanlage
Energie & Heizung
Warum sehe ich diese Anzeige? – Du siehst diese Anzeige basierend auf Ihrer Navigation auf unserer Website und den Suchkriterien, die du verwendet hast.
Energieausweistyp
Bedarfsausweis
Gebäudetyp
Wohngebäude
Wesentliche Energieträger
Gas
Gültigkeit
03.07.2018 bis 02.07.2028
Endenergiebedarf
131,00 kWh/(m²·a)
Weitere Energiedaten
Energieträger
Gas
Heizungsart
Zentralheizung
Details
Objektbeschreibung
Achtung: Der Mietvertrag ist gem. § 575 Abs. 2 BGB ein Zeitmietvertrag über 3 Jahre.
Das Mehrfamilien- und Geschäftshaus in der Pankstraße 57 wurde im Jahre 1914 erbaut. Das Vorderhaus und der Seitenflügel rahmen einen kleinen Hofbereich ein, der im Zuge der umfassenden Modernisierung des Eingangsbereiches und...
Ausstattung
Achtung: Der Mietvertrag ist gem. § 575 Abs. 2 BGB ein Zeitmietvertrag über 3 Jahre.
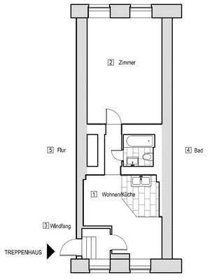
Diese schnittige Altbauwohnung liegt in der 1. Etage des Vorderhauses. Sie verfügt über ein gut dimensioniertes Zimmer sowie eine offene Wohnküche, welche mit einer hochwertigen Einbauküche ausgestattet ist. Eine kleine Nische im...
Weitere Informationen
Sonstiges
Sehr geehrter Interessent,
sollten Sie an einer BESICHTIGUNG interessiert sein, stellen Sie uns dafür bitte eine kurze Kontaktanfrage und Sie erhalten schnellstmöglich eine Antwort von uns.
WICHTIG: Bitte kontaktieren Sie uns DIREKT über das entsprechende Immobilienportal/Inserat (--> BUTTON...
Anbieter der Immobilie
Online-ID: 2nr955z
Referenznummer: 343.003-2
Finde Angebote wie dieses
Hier geht es zu unserem Impressum, den Allgemeinen Geschäftsbedingungen, den Hinweisen zum Datenschutz und nutzungsbasierter Online-Werbung.