
3A Immobilien GmbH
Herr Raffy Kalajian
004 ···
Nr. anzeigenPreise & Kosten
in Warmmiete enthalten
Kaution
1.432,00
Abschreibung/Anlage
Denkmalschutz-Afa
Warum sehe ich diese Anzeige? – Du siehst diese Anzeige basierend auf Ihrer Navigation auf unserer Website und den Suchkriterien, die du verwendet hast.
Lage
Die Wohnung befindet sich in der Leipziger Straße 79, 06108 Halle.
Die Wohnung
Bezug
sofort
Wohnanlage
Energie & Heizung
Warum sehe ich diese Anzeige? – Du siehst diese Anzeige basierend auf Ihrer Navigation auf unserer Website und den Suchkriterien, die du verwendet hast.
Energieausweis: für diesen Gebäudetyp nicht notwendig
Weitere Energiedaten
Energieträger
Gas
Heizungsart
Zentralheizung
Details
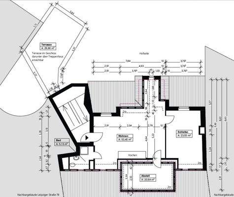
Objektbeschreibung
Viel zentraler geht es nicht! Genießen Sie alle Vorzüge des abwechslungsreichen Lebens in der Innenstadt verbunden mit der Ruhe einer Dachgeschoss-Wohnung.
Das Herzstück der Wohnung ist der großzügige Wohnbereich, welcher problemlos Wohnlandschaft, Esstisch und Arbeitsplatz vereint - hier können Sie wohnen, arbeiten...
Ausstattung
- 2-Raumwohnung
- geräumiges Wohnzimmer
- Bad mit Fenster & Dusche
- großer Abstellraum
- Sonnenterrasse
Achtung: die Dachterrasse befindet sich 1,5 Etagen unter der Wohnung und ist nur über das Treppenhaus erreichbar.
Preisinformation
Nettokaltmiete: 716,00 EUR
Weitere Informationen
Sonstiges
Achtung Denkmalschutz! Kein Energieausweis erforderlich!
HINWEIS: Wir bitten Sie, unsere allgemeinen Geschäftsbedingungen und die gemäß neuen EU-Verbrauchrichtlinien seit 13.06.2014 geltende Widerrufsbelehrung zu beachten. Wünschen Sie weitere Unterlagen, Informationen oder einen Besichtigungstermin...
Anbieter der Immobilie
3A Immobilien GmbH
Herrenstraße 20, 06108 Halle
Online-ID: 2nr935k
Referenznummer: MS-1060-2023-WM
Finde Angebote wie dieses
Hier geht es zu unserem Impressum, den Allgemeinen Geschäftsbedingungen, den Hinweisen zum Datenschutz und nutzungsbasierter Online-Werbung.