
McMakler GmbH
Ihr McMakler Team
080 ···
Nr. anzeigenPreise & Kosten
Provision für Käufer
Die Provision i.H.v. 3,57 % inkl. MwSt. ist mit Kaufvertragsbeurkundung fällig, sofern der Verkaufspreis über 83.000,00 € liegt.
Liegt der Verkaufspreis dagegen bei/unter 83. Weitere Informationen siehe Provisionshinweis.
Lage
Lage: Attraktive Lage in Bergkamen mit guten Möglichkeiten für Selbstnutzer
Bildung und Betreuung: Nur ca. 800 m zu Kindergarten und Schule - ideale Verhältnisse für Ihre Familie
Nahversorgung: Rund 6 km zu wichtigen Anlaufstellen wie Supermärkten, Apotheken, Postfilialen und Bankfilialen
Anbindung: Bushaltestelle...
Das Haus
Kategorie
Doppelhaushälfte
Baujahr
1890
Bezug
ab sofort
Energie & Heizung
Warum sehe ich diese Anzeige? – Du siehst diese Anzeige basierend auf Ihrer Navigation auf unserer Website und den Suchkriterien, die du verwendet hast.
Energieausweistyp
Bedarfsausweis
Gebäudetyp
Wohngebäude
Baujahr laut Energieausweis
1890
Wesentliche Energieträger
Gas
Effizienzklasse
H
Endenergiebedarf
567,90 kWh/(m²·a)
Weitere Energiedaten
Energieträger
Gas
Heizungsart
Zentralheizung
Details
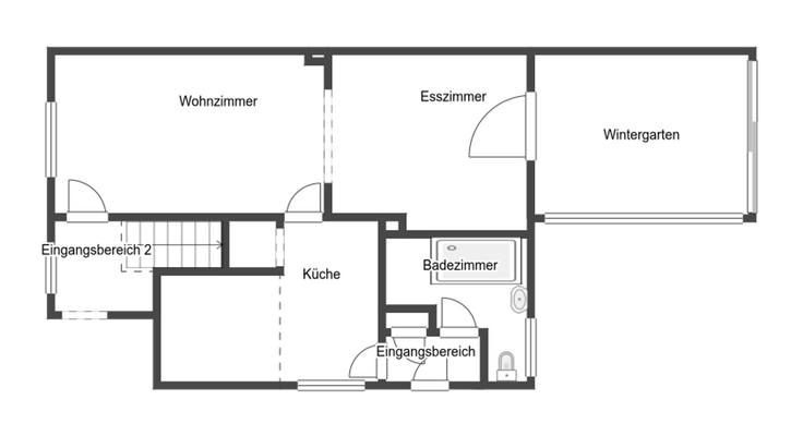
Objektbeschreibung
Objektnr: 1070903
Diese Doppelhaushälfte aus ca. dem Jahr 1890 befindet sich in einer besonders reizvollen und geschichtsträchtigen Siedlung, die ursprünglich als Bergmannssiedlung entstanden ist. Die Umgebung überzeugt durch ihren gewachsenen Charakter und eine angenehme Nachbarschaft.
Das Haus bietet eine...
Ausstattung
+ In familienfreundlicher Umgebung von Bergkamen, optimal für eine Selbstnutzung
+ Tolle Außenbereiche: Garten auf ca. 367 m² großzügigem Grund
+ Die Immobilie präsentiert sich in einem renovierungsbedürftigen Zustand
+ Objekt bietet Platz für Pkw dank einer Garage
Weitere Informationen
Provisionshinweis
Die Provision i.H.v. 3,57 % inkl. MwSt. ist mit Kaufvertragsbeurkundung fällig, sofern der Verkaufspreis über 83.000,00 € liegt.
Liegt der Verkaufspreis dagegen bei/unter 83.000,00 €, ist die fest vereinbarte Mindestprovision i.H.v. mind. 5.950,00 € inkl. MwSt. mit Kaufvertragsbeurkundung fällig...
Anbieter der Immobilie
McMakler GmbH
Am Postbahnhof 17, 10243 Berlin
Online-ID: 2nr845y
Referenznummer: 4ba3162e13
Finde Angebote wie dieses
Hier geht es zu unserem Impressum, den Allgemeinen Geschäftsbedingungen, den Hinweisen zum Datenschutz und nutzungsbasierter Online-Werbung.