
DER IMMO TIP Vermittlung von Immobilien GmbH
Herr Michael Hoffmann
037 ···
Nr. anzeigenPreise & Kosten
Provision für Mieter
provisionsfrei
Warum sehe ich diese Anzeige? – Du siehst diese Anzeige basierend auf Ihrer Navigation auf unserer Website und den Suchkriterien, die du verwendet hast.
Lage
Zwickau ist noch heute die Automobilstadt Nr. 1 in Ostdeutschland. Mit der Volkswagen Sachsen GmbH hat das größte produzierende Unternehmen der neuen Länder seinen Sitz in Zwickau. Die Zulieferfirmen fertigen Produkte, die von A wie Abgassysteme über S wie Sitzelemente bis Z wie zukunftsweisende Antriebstechnologien reichen...
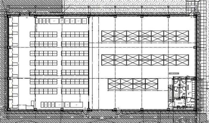
Die Industriefläche
Kategorie
Lagerhalle
Bezug
sofort
Energie & Heizung
Warum sehe ich diese Anzeige? – Du siehst diese Anzeige basierend auf Ihrer Navigation auf unserer Website und den Suchkriterien, die du verwendet hast.
Energieausweis: für diesen Gebäudetyp nicht notwendig
Weitere Energiedaten
Haustyp
Fertighaus
Details
Objektbeschreibung
Die Halle mit ca. 5000m² wurde in den 90er Jahren errichtet. Sie ist als Produktionsfläche mit Verwaltung und für Logistik sehr gut geeignet. Eine langfristige Anmietung wird gewünscht. Die Halle steht kurzfristig zur Verfügung. Die Hallenhöhe beträgt ca. 7,50 m. Es gibt eine Option zur Erweiterung. Bitte fordern Sie ihr...
Ausstattung
- 2 Tore
- 2 Rampen
Weitere Informationen
Sonstiges
Hinweis: Fehlende Angaben zum Energieausweis gemäß Energiesparverordnung 2014 ( EnEV ) begründen sich durch Nichtangabepflicht bei Denkmalschutzobjekten, Grundstücken, nichtbeheizbaren Immobilien oder wurden bisher trotz Aufforderung gegenüber dem Auftraggeber nicht zur Verfügung...
Anbieter der Immobilie
DER IMMO TIP Vermittlung von Immobilien GmbH
Semperstr. 1, 01069 Dresden
Online-ID: 2nr7w5k
Referenznummer: 66099_04
Finde Angebote wie dieses
Hier geht es zu unserem Impressum, den Allgemeinen Geschäftsbedingungen, den Hinweisen zum Datenschutz und nutzungsbasierter Online-Werbung.