
JZX GmbH
Frau Jeanne Rößler
004 ···
Nr. anzeigenPreise & Kosten
Provision für Käufer
7,14 inkl. MwSt.
Abschreibung/Anlage
Denkmalschutz-Afa
Lage
Das Mehrfamilienhaus liegt zentral und zugleich angenehm ruhig im Ortsteil Pretzsch der Gemeinde Bad Schmiedeberg. Das Stadtzentrum ist in wenigen Gehminuten erreichbar (ca. 0,3 km) und bietet zahlreiche Dienstleistungen, Gastronomie sowie Angebote für den täglichen Bedarf.
Supermärkte befinden sich in kurzer...
Das Haus
Kategorie
Mehrfamilienhaus
Baujahr
1800
Derzeitige Nutzung
vermietet
Energie & Heizung
Warum sehe ich diese Anzeige? – Du siehst diese Anzeige basierend auf Ihrer Navigation auf unserer Website und den Suchkriterien, die du verwendet hast.
Energieausweis: für diesen Gebäudetyp nicht notwendig
Weitere Energiedaten
Energieträger
Gas
Details
Objektbeschreibung
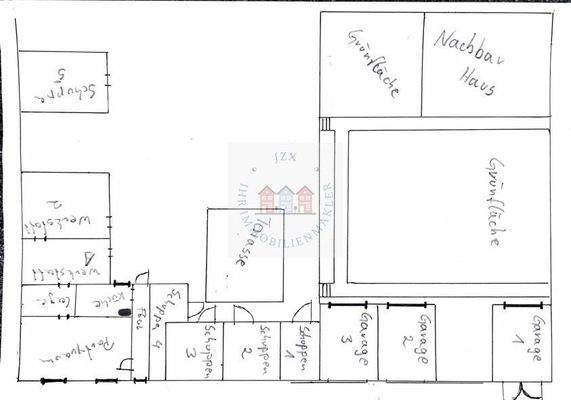
Dieses gepflegte, denkmalgeschützte Mehrfamilienhaus in Bad Schmiedeberg OT Pretzsch vereint historischen Charme mit einer soliden Vermietungssituation und stellt damit eine attraktive Kapitalanlage dar. Das ursprünglich um 1800 errichtete Haus befindet sich auf einem ca. 940 m² großen Grundstück und bietet eine...
Ausstattung
- Das Gebäude ist teilweise unterkellert.
- Die Beheizung erfolgt über eine Gasheizung.
- Als Energieträger/Befeuerungsart wird Gas genutzt.
- 2021 wurde die Wohnung im Obergeschoss vollständig saniert
- neue Küche und Bad im OG - 2021
- neue große Fensterfront zum Hinterhof - 2021
- neuer Trockenbau und...
Weitere Informationen
Sonstiges
Diese Immobilie wird ohne Energieausweis angeboten, da hierfür keine gesetzliche Verpflichtung besteht.
Pretzsch blickt auf eine lange Geschichte zurück und ist besonders für sein barockes Schloss Pretzsch bekannt, das direkt an der Elbe liegt. Die historische Schlossanlage mit ihrem Park prägt das...
Anbieter der Immobilie
JZX GmbH
Körnerstr. 8, 04107 Leipzig
Online-ID: 2nr7g5v
Referenznummer: 2026-233
Finde Angebote wie dieses
Hier geht es zu unserem Impressum, den Allgemeinen Geschäftsbedingungen, den Hinweisen zum Datenschutz und nutzungsbasierter Online-Werbung.