
Italia Immobilien
Frau Nadia Manuela Aron
004 ···
Nr. anzeigenPreise & Kosten
Provision für Käufer
3,66 % inkl. MwSt. inkl. MwSt.
Lage
"Tenuta Elisir Verde" liegt eingebettet in eine wunderschöne Naturlandschaft an den Hängen des Monte Cetona und bietet einen Panoramablick über das Tal. Das Anwesen ist ganzjährig über einen ___ Meter langen Feldweg gut erreichbar. Die nächsten Einkaufsmöglichkeiten, wie eine Bar und ein Minimarkt, sind bequem zu erreichen...
Das Haus
Kategorie
Bauernhaus
Details
Objektbeschreibung
In der sanften Hügellandschaft der Toskana vereint die Immobilie "Tenuta Elisir Verde" Eleganz, Komfort und authentischen ländlichen Charme. Das Landgut umfasst ein 410 Quadratmeter großes Steinbauernhaus und eine elegante 360 Quadratmeter große Landvilla, beide geschmackvoll renoviert und mit hellen, geräumigen Zimmern. Die...
Weitere Informationen
Stichworte
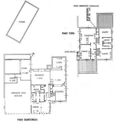
Gesamtfläche: 1.045,00 m², Anzahl der Schlafzimmer: 9, Anzahl der Badezimmer: 9
Anbieter der Immobilie
Online-ID: 2nr5t5k
Referenznummer: IT-01687
Finde Angebote wie dieses
Hier geht es zu unserem Impressum, den Allgemeinen Geschäftsbedingungen, den Hinweisen zum Datenschutz und nutzungsbasierter Online-Werbung.