

KHC Bauträger GmbH
Frau Janet Schrepel
037 ···
Nr. anzeigenPreise & Kosten
Provision für Käufer
provisionsfrei
Lage
Das Grundstück befindet sich in zweiter Reihe in Neukirchen.
Der gezeigte Preis versteht sich inklusive Grundstück.
Anregungen für Ihr Eigenheim finden Sie hier auf diesem Profil oder auf unserer Webseite https://www.kern-haus.de/chemnitz. Alle Grundrisse sind veränderbar oder unser vor Ort ansässiges...
Das Haus
Kategorie
Einfamilienhaus
Baujahr
2026
Energie & Heizung
Warum sehe ich diese Anzeige? – Du siehst diese Anzeige basierend auf Ihrer Navigation auf unserer Website und den Suchkriterien, die du verwendet hast.
Energieausweistyp
Bedarfsausweis
Gebäudetyp
Wohngebäude
Baujahr laut Energieausweis
2026
Wesentliche Energieträger
Strom
Gültigkeit
seit 04.01.2016
Effizienzklasse
A+
Endenergiebedarf
18,77 kWh/(m²·a)
Weitere Energiedaten
Energieträger
Elektro
Heizungsart
Fußbodenheizung, Zentralheizung
Details
Objektbeschreibung
Der lichtdurchflutete Wohntraum 'Signus' lässt keine Wünsche offen. Auf zwei Vollgeschossen findet die ganze Familie Platz, um sich zu entspannen und frei zu entfalten. Die bodentiefen Fensterelemente machen das Haus zu einem Wohnerlebnis und zeigen die Großzügigkeit dieser zeitlosen Stadtvilla.
Gleich im...
Ausstattung
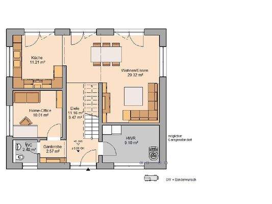
5 Zimmer, Küche, Diele, WC, Flur, Bad, Ankleide, Hauswirtschaftsraum, Garderobe
Das gezeigte Traumhaus im Überblick:
+ Schlüsselfertiges Massivhaus im Sinne der Ausstattungsbeschreibung "Easy"
+ Inklusive Bodenplatte
Beste Markenausstattung in jedem Kern-Haus:
+ Zimmermannsmäßiger Dachstuhl aus...
Weitere Informationen
Sonstiges
Bei Kern-Haus Chemnitz kümmern sich 10 Beschäftigte um das gute Gelingen Ihres Traumhauses. Alle Leistungen werden von unseren Mitarbeitern vor Ort erbracht - von der Beratung, über die Planung bis hin zur Bauleitung. Die Bauleistungen an Ihrem Kern-Haus führen regionale Bauunternehmen fachgerecht aus. Kurze Wege...
Anbieter der Immobilie

Online-ID: 2nr3h5g
Referenznummer: KH 87_17
Finde Angebote wie dieses
Hier geht es zu unserem Impressum, den Allgemeinen Geschäftsbedingungen, den Hinweisen zum Datenschutz und nutzungsbasierter Online-Werbung.