

Niederberg Immobilien Agentur GmbH
Herr Matthias del Longo
020 ···
Nr. anzeigenPreise & Kosten
Kaution
2.250,00
Warum sehe ich diese Anzeige? – Du siehst diese Anzeige basierend auf Ihrer Navigation auf unserer Website und den Suchkriterien, die du verwendet hast.
Lage
Die Wohnung befindet sich im 4. Obergeschoss eines gepflegten Wohnhauses in der Elberfelder Nordstadt, direkt oberhalb des Luisenviertels. Wuppertal ist die größte Stadt im Bergischen Land und aus der Vereinigung der kreisfreien Städte Elberfeld und Barmen im Jahre 1929 hervorgegangen und im Jahre 1939 dann in Wuppertal...
Die Wohnung
Kategorie
Maisonette
Wohnungslage
4. Geschoss
Bezug
sofort
Energie & Heizung
Warum sehe ich diese Anzeige? – Du siehst diese Anzeige basierend auf Ihrer Navigation auf unserer Website und den Suchkriterien, die du verwendet hast.
Energieausweistyp
Bedarfsausweis
Gebäudetyp
Wohngebäude
Baujahr laut Energieausweis
1905
Gültigkeit
bis 25.04.2026
Effizienzklasse
E
Endenergiebedarf
145,00 kWh/(m²·a)
Weitere Energiedaten
Energieträger
Gas
Heizungsart
Etagenheizung, offener Kamin
Details
Objektbeschreibung
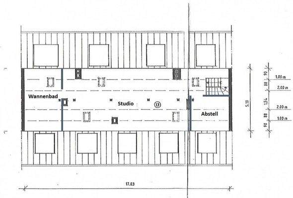
Diese helle Maisonette-Dachgeschosswohnung besticht durch ihre Großzügigkeit. Zur Linken der Wohnungstür befindet sich die Küche mit gut ausgestatteter Einbauküche, die mitvermietet wird. Gegenüber der Küche liegt das Wohnzimmer, das mit Ständerwerk optisch in zwei Bereiche unterteilt ist. Im hinteren Teil des Zimmers...
Ausstattung
Die Ausstattung beinhaltet:
- Einbauküche
- Kaminofen
- Bodentiefe Badewanne
- Duschbad mit Fenster und Waschmaschinenanschluss
- Isolierverglaste Fenster
- große helle Räume
- Holzdielen in den Wohnräumen, Bad und Küche gefliest
- Abstellraum, als begehbarer Kleiderschrank nutzbar
- Türklingel mit...
Weitere Informationen
Sonstiges
Wollen Sie Ihr neues Zuhause besser kennenlernen? Anruf genügt, Matthias del Longo, ich bin für Sie da!
Niederberg Immobilien
Wir vermitteln Wohnträume!
Wülfrath: 02058 - 894 33 86
info@niederbergimmobilien.de
www.niederbergimmobilien.de
Da wir Objektangaben nicht selbst ermitteln...
Anbieter der Immobilie
Niederberg Immobilien Agentur GmbH
Goethestraße 2a, 42489 Wülfrath

Online-ID: 2nqza5d
Referenznummer: 750
Finde Angebote wie dieses
Hier geht es zu unserem Impressum, den Allgemeinen Geschäftsbedingungen, den Hinweisen zum Datenschutz und nutzungsbasierter Online-Werbung.