
Wentzel Dr. Vertriebs GmbH
Frau Kim Beutel
Kontaktiere den Anbieter schriftlich, es ist keine Telefonnummer hinterlegt.
Preise & Kosten
in Warmmiete enthalten
Kaution
1.665,00
Warum sehe ich diese Anzeige? – Du siehst diese Anzeige basierend auf Ihrer Navigation auf unserer Website und den Suchkriterien, die du verwendet hast.
Lage
Die Immobilie im Kreuzweg 2 befindet sich in einer attraktiven und ruhigen Wohngegend im Herzen von Barmstedt, einer idyllischen Kleinstadt im Norden Schleswig-Holsteins. Die Umgebung zeichnet sich durch eine hohe Lebensqualität aus, mit einer angenehmen Mischung aus ländlicher Ruhe und urbaner...
Die Wohnung
Wohnungslage
1. Geschoss
Bezug
sofort
Wohnanlage
Energie & Heizung
Warum sehe ich diese Anzeige? – Du siehst diese Anzeige basierend auf Ihrer Navigation auf unserer Website und den Suchkriterien, die du verwendet hast.
Energieausweistyp
Bedarfsausweis
Gebäudetyp
Wohngebäude
Baujahr laut Energieausweis
1966
Wesentliche Energieträger
GAS
Gültigkeit
seit 18.08.2015
Effizienzklasse
C
Endenergiebedarf
89,80 kWh/(m²·a)
Weitere Energiedaten
Heizungsart
Zentralheizung
Details
Objektbeschreibung
Die gepflegte Wohnanlage im Kreuzweg liegt sehr ruhig und abgeschirmt von der Straße in zweiter Baureihe. Die Gebäude sind von einer gepflegten Grünanlage umgeben, die auch einen Spielplatz umfasst.
Die Gebäudefassaden wurden umfassend saniert und mit einem energieeffizienten Wärmedämmverbundsystem versehen, wodurch die...
Ausstattung
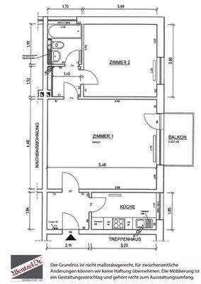
Die angebotene 2-Zimmer-Wohnung befindet sich im 1. Obergeschoss eines gepflegten Mehrfamilienhauses in der Wohnanlage Kreuzweg 2 in 25355 Barmstedt. Mit einer Wohnfläche von ca. 55,46 m² bietet die Wohnung eine gut geschnittene Raumaufteilung und eignet sich ideal für Singles oder Paare.
Die Wohnung verfügt über ein...
Preisinformation
Nettokaltmiete: 555,00 EUR
Weitere Informationen
Sonstiges
Bei Mietvertragsabschluss wird eine Indexmiete und ein Kündigungsausschluss von einem Jahr vereinbart.
Stichworte
Anzahl Balkone: 1
Dokumente
Anbieter der Immobilie
Wentzel Dr. Vertriebs GmbH
Stresemannallee 102-104, 22529 Hamburg
Frau Kim Beutel
Dein Ansprechpartner
Kontaktiere den Anbieter schriftlich, es ist keine Telefonnummer hinterlegt.
Online-ID: 2nqva5z
Referenznummer: 1152.0020
Finde Angebote wie dieses
Hier geht es zu unserem Impressum, den Allgemeinen Geschäftsbedingungen, den Hinweisen zum Datenschutz und nutzungsbasierter Online-Werbung.