
E + V Hamburg Immobilien GmbH
Team Engel & Völkers Hamburg Projekte
+49 ···
Nr. anzeigenPreise & Kosten
Warum sehe ich diese Anzeige? – Du siehst diese Anzeige basierend auf Ihrer Navigation auf unserer Website und den Suchkriterien, die du verwendet hast.
Lage
Das Projekt 'The Lyte' liegt in der HafenCity - einem der modernsten und spannendsten Stadtteile Hamburgs. Die HafenCity vereint auf einzigartige Weise moderne Bürogebäude, luxuriöse Wohnprojekte sowie ein vielfältiges Angebot an Einkaufsmöglichkeiten und Gastronomie. Im südlichen Teil des Überseequartiers entsteht ein...
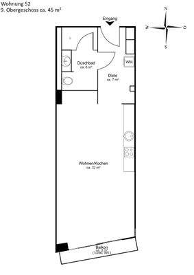
Die Wohnung
Wohnungslage
9. Geschoss
Wohnanlage
Energie & Heizung
Warum sehe ich diese Anzeige? – Du siehst diese Anzeige basierend auf Ihrer Navigation auf unserer Website und den Suchkriterien, die du verwendet hast.
Energieausweistyp
Bedarfsausweis
Gebäudetyp
Wohngebäude
Baujahr laut Energieausweis
2024
Gültigkeit
seit 30.09.2020
Effizienzklasse
B
Endenergiebedarf
66,40 kWh/(m²·a)
Weitere Energiedaten
Energieträger
Fernwärme
Heizungsart
Fußbodenheizung
Details
Objektbeschreibung
Dieses charmante Apartment überzeugt durch sein durchdachtes Raumkonzept, modernes Design und einen offenen, lichtdurchfluteten Wohncharakter. Es verbindet stilvolle Architektur mit funktionaler Eleganz, ideal für alle, die urbanes Wohnen in seiner schönsten Form genießen möchten.
Der Wohn- und Schlafbereich ist harmonisch...
Ausstattung
Einbauküche, Einbauschränke, Hafenblick, Wasserblick
Preisinformation
2 Garagenstellplätze
Nettokaltmiete: 1.609,00 EUR
Weitere Informationen
Stichworte
Süd-Balkon/Terrasse, Gesamtfläche: 45,90 m², Anzahl der Schlafzimmer: 1, Anzahl der Badezimmer: 1, Anzahl Balkone: 1, Bundesland: Hamburg, 15 Etagen
Anbieter der Immobilie
E + V Hamburg Immobilien GmbH
Stadthausbrücke 5, 20355 Hamburg
Online-ID: 2nqsb5h
Referenznummer: I-048GN3-W-048GN3
Finde Angebote wie dieses
Hier geht es zu unserem Impressum, den Allgemeinen Geschäftsbedingungen, den Hinweisen zum Datenschutz und nutzungsbasierter Online-Werbung.