

Kern-Haus AG Niederlassung Dresden
Frau Nicole Ulbricht
035 ···
Nr. anzeigenPreise & Kosten
Provision für Käufer
provisionsfrei
Lage
In begehrter Wohnlage von Dresden-Striesen steht ein ca. 405 m² großes Grundstück zum Verkauf, das sich ideal für die Bebauung mit einer modernen Doppelhaushälfte eignet. Das Grundstück überzeugt durch seine durchdachte Größe und bietet beste Voraussetzungen für ein komfortables Zuhause mit großzügigem...
Das Haus
Kategorie
Doppelhaushälfte
Baujahr
2026
Energie & Heizung
Warum sehe ich diese Anzeige? – Du siehst diese Anzeige basierend auf Ihrer Navigation auf unserer Website und den Suchkriterien, die du verwendet hast.
Energieausweistyp
Bedarfsausweis
Gebäudetyp
Wohngebäude
Effizienzklasse
A+
Endenergiebedarf
16,44 kWh/(m²·a)
Weitere Energiedaten
Energieträger
Elektro
Heizungsart
Fußbodenheizung, Zentralheizung
Details
Objektbeschreibung
Dieses außergewöhnliche Architektenhaus punktet mit einer raffinierten Raumaufteilung gleich doppelt! Das Haus ist durch seine Bauweise ein Blickfang in jedem Baugebiet und als Doppelhaus auf den ersten Blick kaum zu erkennen.
Das Erdgeschoss bietet einen angenehmen Platz für das alltägliche Leben - sowohl für eine...
Ausstattung
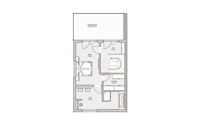
4 Zimmer, Küche, Diele, WC, 2x Flur, 2x Bad, Hauswirtschaftsraum, Ankleide, Dachterrasse
Das gezeigte Traumhaus im Überblick:
+ Schlüsselfertiges Massivhaus im Sinne der Ausstattungsbeschreibung "Edition 25"
+ Zukunftsorientierte Energieausstattung in Form einer Luft-Wasser-Wärmepumpe und Fußbodenheizung...
Weitere Informationen
Sonstiges
Kern-Haus
Kern-Haus baut individuelle und massive Architektenhäuser zu einem attraktiven Preis-Leistungs-Verhältnis - und das bereits mit einer Erfahrung seit 1980. Bei Kern-Haus erhalten Sie unter anderem 10 Jahre Gewährleistung auf die wesentlichen Bauleistungen, bis zu 24 Monate Preissicherheit sowie...
Anbieter der Immobilie
Kern-Haus AG Niederlassung Dresden
Am Sandberg 2, 01468 Moritzburg

Online-ID: 2nqrr5y
Referenznummer: WDD 10477
Finde Angebote wie dieses
Hier geht es zu unserem Impressum, den Allgemeinen Geschäftsbedingungen, den Hinweisen zum Datenschutz und nutzungsbasierter Online-Werbung.