

Premium-Immobilien Nord GmbH
Frau Merle Pfeil
+49 ···
Nr. anzeigenPreise & Kosten
Provision für Käufer
Provisionspflichtig
Verdient und fällig nach notarieller Beurkundung.
Lage
1A-Lage
Das Reihenmittelhaus befindet sich in einem ruhigen und gewachsenen Wohngebiet von Eutin, eingebettet in eine grüne und familienfreundliche Umgebung. Die Lage bietet eine ideale Kombination aus naturnahem Wohnen und einer sehr guten Erreichbarkeit der städtischen Infrastruktur.
Kindertagesstätten...
Das Haus
Kategorie
Reihenmittelhaus
Baujahr
1968
Bezug
Bezugsfrei
Derzeitige Nutzung
frei
Energie & Heizung
Warum sehe ich diese Anzeige? – Du siehst diese Anzeige basierend auf Ihrer Navigation auf unserer Website und den Suchkriterien, die du verwendet hast.
Energieausweistyp
Bedarfsausweis
Gebäudetyp
Wohngebäude
Gültigkeit
bis 10.01.2036
Effizienzklasse
F
Endenergiebedarf
173,09 kWh/(m²·a)
Weitere Energiedaten
Energieträger
Öl
Heizungsart
Zentralheizung
Details
Objektbeschreibung
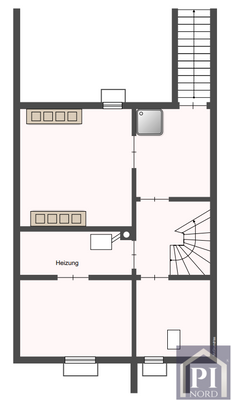
In einer ruhigen Wohnstraße in Eutin befindet sich dieses gepflegte Reihenmittelhaus aus dem Jahr 1968. Das Haus bietet eine Wohn- und Nutzfläche von ca. 126 m² und steht auf einem ca. 180 m² großen Grundstück.
Schon der erste Eindruck vermittelt ein angenehmes Wohngefühl:
Die Reihenhausanlage präsentiert sich...
Ausstattung
. 5 Zimmer
. ca. 85 m² Wohnfläche
. ca. 40 m² Nutzfläche (Dachgeschoss + Kellergeschoss)
. ca. 180 m² Grundstücksfläche
. Baujahr 1968
. Einbauküche
. Wannenbad und zwei Gäste-WC´s
. Vollkeller mit zwei Kellerräumen sowie zusätzlichen Raum für die Ölheizung
. Sonnige Südterrasse mit Markise
...
Preisinformation
2 Garagenstellplätze
Weitere Informationen
Sonstiges
Gerne beraten wir Sie in allen Angelegenheiten rund um den Immobilienkauf und/oder -verkauf.
Den Weg in Ihr neues Zuhause ermöglichen wir durch ein vielfältiges Angebot:
Sie erhalten das "Rundum-sorglos-Paket" und haben nur einen Ansprechpartner.
Sie suchen einen Käufer für Ihr derzeitiges Haus oder...
Anbieter der Immobilie

Premium-Immobilien Nord GmbH
Am Kiel-Kanal 1, 24106 Kiel

Online-ID: 2nqrg5u
Referenznummer: 1742
Finde Angebote wie dieses
Hier geht es zu unserem Impressum, den Allgemeinen Geschäftsbedingungen, den Hinweisen zum Datenschutz und nutzungsbasierter Online-Werbung.