
Felder. Der Gewerbespezialist GmbH
Frau Tanja Heise
+49 ···
Nr. anzeigenPreise & Kosten
Provision für Käufer
3,57% inkl. MwSt. aus der Kaufpreissumme
Lage
Die Gewerbeimmobilie befindet sich in Oberbayern, einer der wirtschaftsstärksten Regionen Deutschlands, mit Nähe zu den Wachstumsräumen München und Salzburg. Der Standort profitiert von einer stabilen Wirtschaftsstruktur, hoher Kaufkraft und sehr guter regionaler sowie überregionaler Erreichbarkeit.
Im...
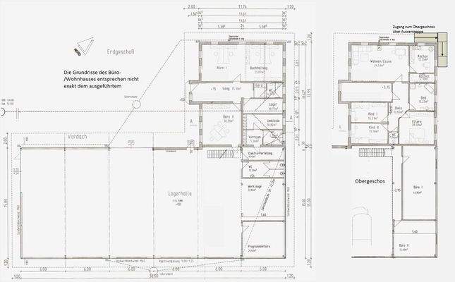
Die Industriefläche
Kategorie
Lagerhalle
Details
Objektbeschreibung
Im Landkreis Traunstein überzeugt der Standort Schnaitsee durch gute Verkehrsanbindung, stabile Wirtschaftsstruktur und ein etabliertes Gewerbegebiet mit idealen Voraussetzungen für Handwerk, Produktion und Dienstleistungen. Die moderne Gewerbeimmobilie mit großzügiger Stahlbauhalle, hellen Arbeitsbereichen und...
Weitere Informationen
Nutzung
Ideal für Handwerks-, Produktions-, Lager- oder Logistikbetriebe. Das Objekt vereint funktionale Gewerbeflächen mit Bürobereichen und ergänzt diese durch eine großzügige Wohneinheit mit privatem Gartenanteil.
Zusatz/Über Uns
Herzlich Willkommen bei Felder, Ihrem Spezialisten für Gewerbeimmobilien in...
Anbieter der Immobilie
Online-ID: 2nqqc5a
Referenznummer: A1514
Finde Angebote wie dieses
Hier geht es zu unserem Impressum, den Allgemeinen Geschäftsbedingungen, den Hinweisen zum Datenschutz und nutzungsbasierter Online-Werbung.