
Fischer Immobilien GmbH
Herr Benjamin Geier
070 ···
Nr. anzeigenPreise & Kosten
Kaution
11.400€
Provision für Mieter
2,38 Monatsmieten inkl. 19 % MwSt.
2,38 Monatsmieten inkl. 19% MwSt.
Warum sehe ich diese Anzeige? – Du siehst diese Anzeige basierend auf Ihrer Navigation auf unserer Website und den Suchkriterien, die du verwendet hast.
Lage
Der Ortsteil Hochdorf der Gemeinde Eberdingen, zusammen mit Nußdorf, bietet eine ausgezeichnete Lage für gewerbliche Nutzungen. Die Region ist verkehrstechnisch hervorragend angebunden: Direkt an der Bundesstraße B10 gelegen, profitieren Unternehmen von einer schnellen Erreichbarkeit wichtiger Verkehrsachsen.
Die Nähe...
Büro-/Praxisfläche
Kategorie
Bürofläche
Baujahr
1990
Bezug
Sommer 2026
Energie & Heizung
Warum sehe ich diese Anzeige? – Du siehst diese Anzeige basierend auf Ihrer Navigation auf unserer Website und den Suchkriterien, die du verwendet hast.
Wärme
Energieausweistyp
Bedarfsausweis
Gebäudetyp
Nicht-Wohngebäude
Wesentliche Energieträger
Öl
Gültigkeit
07.03.2010 bis 16.12.2035
Endenergiebedarf (Wärme)
369,20 kWh/(m²·a)
Weitere Energiedaten
Energieträger
Öl
Heizungsart
Zentralheizung
Details
Objektbeschreibung
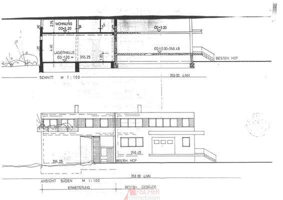
Moderne Gewerbeimmobilie mit Büroflächen und Halle - Verfügbar ab Sommer 2026
Ab Sommer 2026 können Sie in diese modern ausgestatteten Gewerberäume einziehen! Auf ca. 200 m² Bürofläche erwartet Sie eine stilvolle Arbeitsumgebung mit modernen Büromöbeln und hochwertiger Ausstattung. Der Konferenzraum bietet ideale...
Ausstattung
Die gepflegten Büro- und Gewerberäume zeichnen sich durch eine hochwertige und harmonische Ausstattung aus. Der dunkelblaue Teppichboden verleiht den Büros eine elegante Atmosphäre, die perfekt mit den modernen Bürostühlen und den buchefarbenen Schreibtischen und Büromöbeln harmoniert. Auch die Küchenzeile fügt sich dank...
Preisinformation
8 Stellplätze
Weitere Informationen
Sonstiges
Unser Angebot ist freibleibend und unverbindlich. Irrtum sowie Zwischenverkauf bleiben ausdrücklich vorbehalten. Kommt durch unsere Vermittlung/Nachweis ein Mietvertrag zustande, so ist die genannte Provision zu zahlen.
Eigentümerangaben:
Unser Exposé beruht auf den Angaben unserer Auftraggeber und...
Anbieter der Immobilie
Online-ID: 2nqpt59
Referenznummer: FI-10242
Finde Angebote wie dieses
Hier geht es zu unserem Impressum, den Allgemeinen Geschäftsbedingungen, den Hinweisen zum Datenschutz und nutzungsbasierter Online-Werbung.