
Crozilla.com
Dogma nekretnine
+38 ···
Nr. anzeigenPreise & Kosten
Provision für Käufer
Bitte beachte, das Angebot kann bei Vertragsabschluss die Zahlung einer Provision beinhalten. Weitere Informationen erhältst Du vom Anbieter.
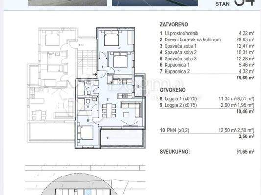
Die Wohnung
Wohnungslage
1. Geschoss
Wohnanlage
Details
Objektbeschreibung
ID CODE: PAG199
Vlatko Saran
Agent s licencom
Mob: 098/429-832
Tel: 023/551-400
E-mail: vlatko.saran@dogma-nekretnine.com
www.dogma-nekretnine.com
Weitere Informationen
Stichworte
Anzahl der Schlafzimmer: 3, Anzahl der Badezimmer: 2, 1 Etagen
Anbieter der Immobilie
Crozilla.com
Nova cesta 60, 10000 ZAGREB
Online-ID: 2nqpm5e
Referenznummer: 18670592_3
Finde Angebote wie dieses
Hier geht es zu unserem Impressum, den Allgemeinen Geschäftsbedingungen, den Hinweisen zum Datenschutz und nutzungsbasierter Online-Werbung.