

DAHLER Potsdam | Berlin-Wannsee | Kleinmachnow
Herr Christian Aschenbeck
033 ···
Nr. anzeigenPreise & Kosten
Provision für Käufer
2,38% inkl. MwSt. bezogen auf den beurkundeten Kaufpreis
Lage
Direkt am Jungfernsee, auf einer kleinen Anhöhe gelegen, entstand hier in den letzten Jahren ein komplett neuer Stadtteil - "Belvedere Jungfernsee". Rund 15 Hektar umfasst das Wohngebiet am Jungfernsee, aufgeteilt in 150 Baugrundstücke zwischen 600 und 2.000 m². Extravagante Villen und großzügige Einfamilienhäuser, die sich...
Das Haus
Kategorie
Einfamilienhaus
Baujahr
2016
Energie & Heizung
Warum sehe ich diese Anzeige? – Du siehst diese Anzeige basierend auf Ihrer Navigation auf unserer Website und den Suchkriterien, die du verwendet hast.
Energieausweistyp
Verbrauchsausweis
Gebäudetyp
Wohngebäude
Wesentliche Energieträger
FERN
Gültigkeit
bis 15.02.2036
Effizienzklasse
B
Endenergieverbrauch
69,40 kWh/(m²·a)
Weitere Energiedaten
Energieträger
Fernwärme
Heizungsart
Fußbodenheizung, offener Kamin
Details
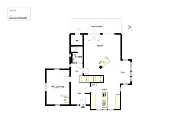
Objektbeschreibung
In einer der begehrtesten Wohnlagen Potsdams, im exklusiven Belvedere Jungfernsee, präsentiert sich dieses äußerst gepflegte Einfamilienhaus als modernes Zuhause für anspruchsvolle Eigennutzer. Die ruhige, familienfreundliche Umgebung, die unmittelbare Nähe zur Natur sowie die hervorragende Anbindung an die Potsdamer...
Ausstattung
. Gepflegtes Einfamilienhaus in exklusiver Wohnlage Belvedere Jungfernsee
. Baujahr 2016 in massiver Bauweise
. Hochwertige Verklinkerung der Außenfassade
. Großzügiges Grundstück mit ca. 1.010 m² Fläche
. Wohnfläche von ca. 218 m² auf zwei Ebenen
. Funktionaler und effizient gestalteter Grundriss
. Fünf gut...
Preisinformation
1 Carportplatz
Weitere Informationen
Sonstiges
Ihre Werte sind bei uns in besten Händen
DAHLER ist auf die Vermittlung hochwertiger Wohnimmobilien in bevorzugten Lagen spezialisiert. Seit über 30 Jahren wird unser Unternehmen von Kirsten und Björn Dahler geführt und setzt mit Innovationskraft und Servicequalität Maßstäbe in der Branche. Unsere mehr als...
Anbieter der Immobilie

Online-ID: 2nqm75z
Referenznummer: D-POT8901-LIV
Finde Angebote wie dieses
Hier geht es zu unserem Impressum, den Allgemeinen Geschäftsbedingungen, den Hinweisen zum Datenschutz und nutzungsbasierter Online-Werbung.