
CIC Caspari Immobilien Cooperation
Herr/Frau Ralf D. Caspari
060 ···
Nr. anzeigenPreise & Kosten
Provision für Käufer
3,57 % inkl. MwSt.
Lage
Osterburken ist mit seinen Stadtteilen trotz seiner ländlichen Lage im Nordosten der Metropolregion Rhein-Neckar verkehrstechnisch bestens angebunden. Gewähr dafür bieten die Bahnstrecken Stuttgart – Würzburg, die S-Bahn Rhein-Neckar und die Autobahn A 81.
Bildung und Betreuung sind in der Schulstadt Osterburken...
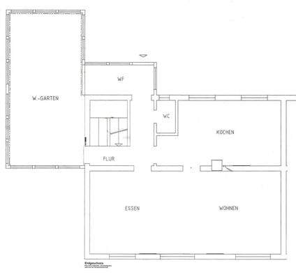
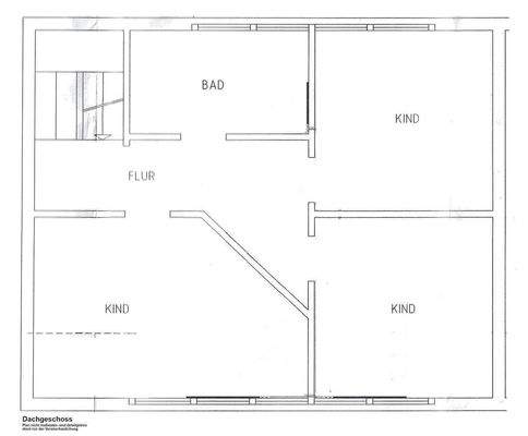
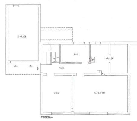
Das Haus
Kategorie
Doppelhaushälfte
Bezug
VB
Energie & Heizung
Warum sehe ich diese Anzeige? – Du siehst diese Anzeige basierend auf Ihrer Navigation auf unserer Website und den Suchkriterien, die du verwendet hast.
Energieausweistyp
Bedarfsausweis
Gebäudetyp
Wohngebäude
Wesentliche Energieträger
Gas
Gültigkeit
17.11.2018 bis 16.11.2028
Effizienzklasse
D
Endenergiebedarf
117,50 kWh/(m²·a)
Weitere Energiedaten
Energieträger
Gas
Heizungsart
Zentralheizung
Details
Objektbeschreibung
Objektbeschreibung
Außergewöhnlich großzügiges Wohlfühlanwesen für die ganze Familie…
…oder Wohnen und Arbeiten und einem Dach trifft es ebenfalls perfekt. In beliebter Lage von Osterburken erwartet Sie Ihr neues Domizil welches Ihnen bequem mehrere Nutzungsoptionen bietet. Dank der gelungenen Architektur an der...
Weitere Informationen
Stichworte
Zustand: renoviert, saniert, gepflegt
Sonstiges: Keller als Wohnraum nutzbar, frei werdend
Anbieter der Immobilie
Online-ID: 2nqjh5m
Referenznummer: 475-cic-Osb.
Finde Angebote wie dieses
Hier geht es zu unserem Impressum, den Allgemeinen Geschäftsbedingungen, den Hinweisen zum Datenschutz und nutzungsbasierter Online-Werbung.