AG-Immobilien

Frau Anastasia Gavner

Projektgrundstück mit genehmigtem 4-Parteienhaus Attraktive Kapitalanlage mit sofortigem Baurecht

€ 67.000
Kaufpreis
816 m²
Grundstücksfl. ca.

Der Anbieter dieses Objekts hat gegenüber der AVIV Germany GmbH als Betreiber dieses Online-Marktplatzes erklärt, nicht als Unternehmer im Sinne des § 1 KSchG zu handeln. Die im Verbraucherschutzrecht der Union verankerten Verbraucherrechte (insbesondere Informationspflichten und Rücktritts- bzw. Widerrufsrechte) finden auf den Vertrag zwischen dem Anbieter des Objekts und Ihnen (dem Interessenten) keine Anwendung.

Gewerblicher Anbieter

Der Anbieter dieses Objekts hat gegenüber der AVIV Germany GmbH als Betreiber dieses Online-Marktplatzes erklärt, als Unternehmer im Sinne des § 1 KSchG zu handeln.

AdresseStraße nicht freigegeben
37441 Bad Sachsa 
Auf Karte ansehen

Preise & Kosten

Kaufpreis € 67.000

Provision für Käufer

Provisionsfrei

Lage

Bad Sachsa ist eine charmante Stadt in der niedersächsischen am Südrand des Harzes im Landkreis Göttingen, etwa 50 km östlich von Göttingen und 20 km nordwestlich von Nordhausen, umgeben von wunderschönen Wäldern und Bergen. Die Stadt ist ein staatlich anerkannter heilklimatischer Kurort und Wintersportplatz. Bekannt für ihre...

Mehr anzeigen

Das Grundstück

  • bebaubar nach §34 Nachbarbebauung
  • voll erschlossen

Details

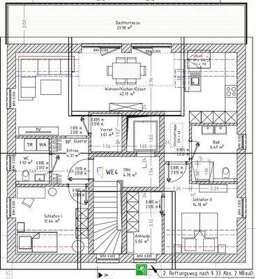
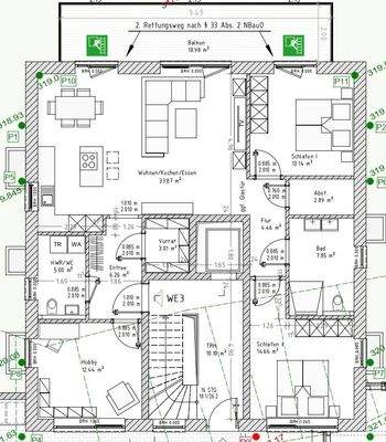
Objektbeschreibung

Projektpotenzial
Das Grundstück bietet die Möglichkeit zur Realisierung eines modernen 4-Parteienhauses mit ca.
470 m² Wohnfläche. Die geplanten Wohnungsgrößen sind marktgerecht konzipiert und bieten eine
nachhaltige Vermietbarkeit. Durch die vorhandene Baugenehmigung kann das Projekt kurzfristig
umgesetzt...

Mehr anzeigen

Ausstattung

Standort: 37441 Bad Sachsa
. Grundstücksgröße: ca. 816 m²
. Voll erschlossen
. Baugenehmigung vorhanden
. Geplante Wohnfläche: ca. 470 m²
. 4 Wohneinheiten (2-4 Zimmer)

Anbieter der Immobilie

Partner

AG-Immobilien

Karl-Schiller-Str. 5, 26209 Hatten

user

Frau Anastasia Gavner

Dein Ansprechpartner

Anbieter-Website Anbieter-Profil Anbieter-Impressum

Online-ID: 2nqg95q

Referenznummer: 1023

Finde Angebote wie dieses

imageimageimage

Hier geht es zu unserem Impressum, den Allgemeinen Geschäftsbedingungen, den Hinweisen zum Datenschutz und nutzungsbasierter Online-Werbung.