
Die Spitzenmakler
Frau Senada Spitzenberger
084 ···
Nr. anzeigenPreise & Kosten
Provision für Käufer
3% inkl. MwSt. inkl. MwSt.
Lage
Die Wohnung befindet sich in einer attraktiven und gewachsenen Wohnlage im Süden von Ingolstadt, die sich durch eine angenehme Kombination aus ruhigem Wohnen und hervorragender Infrastruktur auszeichnet. Das Umfeld ist geprägt von gepflegten Wohnhäusern, viel Grün sowie einer sehr guten Anbindung an die Innenstadt und...
Die Wohnung
Kategorie
Maisonette
Wohnungslage
1. Geschoss
Bezug
nach Vereinbarung
Wohnanlage
Energie & Heizung
Warum sehe ich diese Anzeige? – Du siehst diese Anzeige basierend auf Ihrer Navigation auf unserer Website und den Suchkriterien, die du verwendet hast.
Energieausweistyp
Bedarfsausweis
Gebäudetyp
Wohngebäude
Baujahr laut Energieausweis
2000
Wesentliche Energieträger
GAS
Gültigkeit
bis 12.03.2036
Effizienzklasse
F
Endenergiebedarf
176,20 kWh/(m²·a)
Weitere Energiedaten
Energieträger
Gas
Heizungsart
offener Kamin, Zentralheizung
Details
Objektbeschreibung
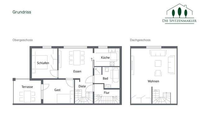
In ruhiger und dennoch zentraler Lage von Ingolstadt Süd befindet sich diese außergewöhnlich geschnittene 3-Zimmer-Maisonettewohnung im 1. Obergeschoss und Dachgeschoss einer gepflegten in Massivbauweise errichteten Doppelhaushälfte Die Wohnung überzeugt durch einen modernen Wohnstil, eine durchdachte Raumaufteilung sowie...
Ausstattung
Highlights auf einen Blick
3-Zimmer-Maisonettewohnung im 1. OG und DG einer Doppelhaushälfte in Massivbauweise
Grundstücksanteil 140,5qm
zusätzlicher Wohnbereich im Dachstudio
ca. 12 m² große Dachterrasse mit Südausrichtung
und elektrischer Markise lädt zum Genießen von Sonnenuntergängen...
Preisinformation
1 Garagenstellplatz
Weitere Informationen
Sonstiges
Die Wohnung ist nach Absprache verfügbar.
Hinweis: einzelne Fotos wurden digital bearbeitet oder visualisiert. Maßgeblich sind ausschließlich die Besichtigung vor Ort sowie die Regelungen im notariellen Kaufvertrag.
Stichworte
Anzahl der Schlafzimmer: 2, Anzahl der Badezimmer: 1, Anzahl Balkone...
Anbieter der Immobilie
Die Spitzenmakler
Donaustraße 14, 85088 Vohburg an der Donau
Online-ID: 2nqf75x
Referenznummer: 7146
Finde Angebote wie dieses
Hier geht es zu unserem Impressum, den Allgemeinen Geschäftsbedingungen, den Hinweisen zum Datenschutz und nutzungsbasierter Online-Werbung.