
Engel & Völkers Gewerbe GmbH & Co. KG
Herr Bjarne Benthien
+49 ···
Nr. anzeigenPreise & Kosten
Provision für Mieter
provisionsfrei
Warum sehe ich diese Anzeige? – Du siehst diese Anzeige basierend auf Ihrer Navigation auf unserer Website und den Suchkriterien, die du verwendet hast.
Lage
Die hier angebotene Praxisfläche befindet sich in einer der attraktivsten Regionen der Lübecker Bucht: im Ostseeheilbad Timmendorfer-Strand. Die Straße liegt dabei in einem gepflegten und ruhig gelegenen Umfeld, das eine ideale Balance zwischen diskreter Arbeitsatmosphäre und exzellenter Erreichbarkeit bietet.
Abseits der...
Büro-/Praxisfläche
Kategorie
Praxisfläche
Energie & Heizung
Warum sehe ich diese Anzeige? – Du siehst diese Anzeige basierend auf Ihrer Navigation auf unserer Website und den Suchkriterien, die du verwendet hast.
Energieausweistyp
Verbrauchsausweis
Gebäudetyp
Wohngebäude
Wesentliche Energieträger
Erdgas
Gültigkeit
20.10.2024 bis 20.10.2034
Effizienzklasse
D
Endenergieverbrauch
128,80 kWh/(m²·a)
Details
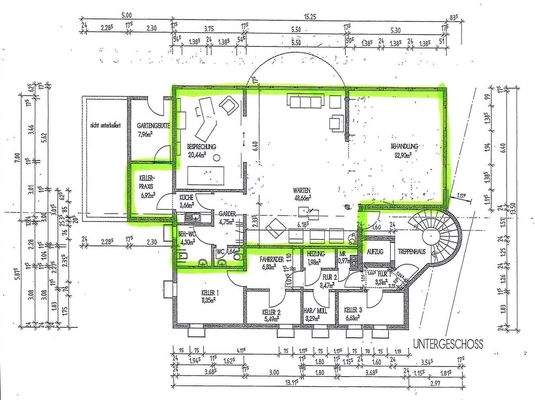
Objektbeschreibung
Diese außergewöhnliche Gewerbefläche im Erdgeschoss des Ebeltofter Wegs am Timmendorfer Strand bietet eine seltene Kombination aus professionalität und entspannter Atmosphäre. Schon beim Betreten der Räume spürt man die Offenheit und Wärme, die durch den hochwertigen Boden in Holzoptik und die lichtdurchflutete Architektur...
Ausstattung
Gartenzugang durch große Schiebetüren
Loft-Charakter durch tragende Rundsäulen
Pflegeleichter Vinylparkett
Großflächige, Rundbogen Fenster mit Blick in den Garten
Zwei Ein- und Ausgänge für Mitarbeiter und Kunden
Parkplätze direkt vor der Haustür
Pantryküche bereits vorhanden
Getrennte Sanitäranlagen
Preisinformation
Nettokaltmiete: 1.600,00 EUR
Weitere Informationen
Stichworte
Ladenfläche: 124,00 m², Bundesland: Schleswig-Holstein
Anbieter der Immobilie
Engel & Völkers Gewerbe GmbH & Co. KG
Stadthausbrücke 5, 20355 Hamburg
Online-ID: 2nqej5c
Referenznummer: EV1626696
Finde Angebote wie dieses
Hier geht es zu unserem Impressum, den Allgemeinen Geschäftsbedingungen, den Hinweisen zum Datenschutz und nutzungsbasierter Online-Werbung.