
Ansgar Mertens Immobilien und Finanzierungen
Herr Ansgar Mertens
021 ···
Nr. anzeigenPreise & Kosten
Provision für Käufer
Provisionsfrei
Lage
Der Stadtteil "Meerbusch-Strümp" zählt traditionell zu den privilegierten Wohnlagen im unmittelbaren Einzugsbereich der Landeshauptstadt Düsseldorf.
| . | Einkaufen | . |
In Ihrem neuen Zuhause befindet sich alles direkt vor Ihrer Haustüre - Supermärkte, Bäckereien, Discounter, Restaurants, Tankstellen und viele...
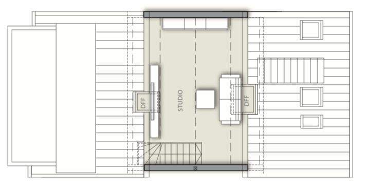
Die Wohnung
Kategorie
Maisonette
Bezug
ab sofort
Wohnanlage
Energie & Heizung
Warum sehe ich diese Anzeige? – Du siehst diese Anzeige basierend auf Ihrer Navigation auf unserer Website und den Suchkriterien, die du verwendet hast.
Weitere Energiedaten
Energieträger
Gas
Heizungsart
Zentralheizung
Details
Objektbeschreibung
| . | "Living your WEY" | . |
Es ist eine dieser Gelegenheiten, die es so nicht oft gibt:
Solide Bestandswohnungen in Vorzugslage, die mit Gespür für Design und Werterhalt in ein neues Zeitalter geführt werden. Das gepflegte Ensemble WEY hat alles, was attraktives Wohnen ausmacht.
| . | Merkmale |...
Ausstattung
| . | Bereits gebaut. Besonders gemacht. | . |
Das Objekt mit 8 Wohneinheiten in Meerbusch-Strümp wurde 1971 in massiver Bauweise erstellt und zur Mitte des Jahres 2021 umfangreichst saniert.
Das Mehrfamilienhaus überzeugt durch seine nachweislich gute Bausubstanz. In der Fassadensprache lässt sich die...
Preisinformation
Ist-Mieteinnahmen pro Jahr: 14.687,40 EUR
Weitere Informationen
Sonstiges
| . | Energieausweis | . |
Energieeffizienzklasse: C
Energieausweis: Bedarfsasuweis
Wesentliche Energieträger Heizung: Gas
Energiebedarf: 96,00 kWh/qm.a
Baujahr: 1971
| . | Nebenkosten 2024 + Wirtschaftspläne 2025 & 2026 | . |
Das gemäß Abrechnung 2024...
Anbieter der Immobilie
Ansgar Mertens Immobilien und Finanzierungen
Voosen 38, 41179 Mönchengladbach
Online-ID: 2nqeg5u
Referenznummer: 426
Finde Angebote wie dieses
Hier geht es zu unserem Impressum, den Allgemeinen Geschäftsbedingungen, den Hinweisen zum Datenschutz und nutzungsbasierter Online-Werbung.