

PIPPING Immobilien GmbH & Co. KG
Frau Grete Heeschen
+49 ···
Nr. anzeigenPreise & Kosten
Provision für Käufer
3,125 % inkl. USt.
Lage
Reinbek - die "Stadt im Grünen", liegt im Speckgürtel von Hamburg und bietet derzeit ca. 28.000 Einwohnern eine attraktive Infrastruktur mit Ärzten, Apotheken, Restaurants, Supermärkten sowie Dienstleistungsbetrieben aus allen Branchen. Kindergärten, Grundschulen und weiterführende Schulen sind ebenso vorhanden wie ein...
Die Wohnung
Wohnungslage
13. Geschoss
Energie & Heizung
Warum sehe ich diese Anzeige? – Du siehst diese Anzeige basierend auf Ihrer Navigation auf unserer Website und den Suchkriterien, die du verwendet hast.
Energieausweistyp
Verbrauchsausweis
Gebäudetyp
Wohngebäude
Baujahr laut Energieausweis
1963
Wesentliche Energieträger
Öl
Gültigkeit
bis 09.11.2027
Effizienzklasse
F
Endenergieverbrauch
167,00 kWh/(m²·a) - Warmwasser enthalten
Weitere Energiedaten
Energieträger
Öl
Details
Objektbeschreibung
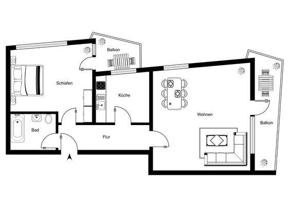
Bei dem angebotenen Objekt handelt es sich um eine vermietete 2-Zimmer-Wohnung unweit des Reinbeker Zentrums. Sie befindet sich im dreizehnten Stock eines gepflegten Mehrfamilienhauses, welches im Jahre 1963 in konventioneller Bauweise errichtet wurde und insgesamt 146 Wohneinheiten beherbergt.
Die Beheizung sowie die...
Ausstattung
Diese 2-Zimmer-Wohnung bietet auf ca. 60 m² Wohnfläche ein gemütliches Zuhause und besticht vor allem durch ihren pfiffigen Schnitt mit zwei Balkonen.
Vom Flur aus gelangen Sie in das großzügige und gut geschnittene Wohn- und Esszimmer, welches ausreichend Platz für eine gemütliche Sofalandschaft und auch einen großen...
Preisinformation
Ist-Mieteinnahmen pro Jahr: 5.587,20 EUR
Anbieter der Immobilie
PIPPING Immobilien GmbH & Co. KG
Bahnhofstr. 12, 21465 Reinbek

Online-ID: 2nq7k5l
Referenznummer: GH-266212947
Finde Angebote wie dieses
Hier geht es zu unserem Impressum, den Allgemeinen Geschäftsbedingungen, den Hinweisen zum Datenschutz und nutzungsbasierter Online-Werbung.