
Baues-Otte GbR
Herr Marcel Otte
+49 ···
Nr. anzeigenPreise & Kosten
Provision für Käufer
3,57% vom Kaufpreis
Die Maklercourtage beträgt 3,57% vom Kaufpreis inklusive der gesetzlich vorgeschriebenen MwSt. in Höhe von 19%.
Lage
Das großzügige Einfamilienhaus liegt in einer Sackgasse in ruhiger und bevorzugter Lage von Kerpen Horrem, nur wenige Gehminuten vom Ortszentrum entfernt.
Horrem ist ein Ortsteil der Stadt Kerpen im Rhein-Erft-Kreis am östlichen Ufer der Erft.
Der Bahnhof Horrem, welcher in ca. 4-5 Minuten fußläufig erreichbar ist, ist...
Das Haus
Kategorie
Reihenmittelhaus
Baujahr
1974
Bezug
Sofort
Energie & Heizung
Warum sehe ich diese Anzeige? – Du siehst diese Anzeige basierend auf Ihrer Navigation auf unserer Website und den Suchkriterien, die du verwendet hast.
Energieausweistyp
Bedarfsausweis
Gebäudetyp
Wohngebäude
Wesentliche Energieträger
Öl
Gültigkeit
03.09.2025 bis 02.09.2035
Effizienzklasse
G
Endenergiebedarf
231,00 kWh/(m²·a)
Weitere Energiedaten
Energieträger
Öl
Heizungsart
Zentralheizung
Details
Objektbeschreibung
In ruhiger und sehr zentraler Wohnlage befindet sich dieses großzügige und massiv gebaute Reihenmittelhaus in Kerpen Horrem mit einem Grundstück von ca. 285 m². Die repräsentative Immobilie wurde im Jahr 1974 erbaut. Sie verfügt über rund 250 m² Wohnnutzfläche, aufgeteilt auf drei Wohnebenen mit insgesamt fünf Zimmern...
Ausstattung
- Badezimmer im EG mit Dusche und Tageslichtfenster
- Badezimmer im OG mit Badewanne und Tageslichtfenster
- Einbauküche ist im Preis enthalten
- das komplette Inventar ist im Preis enthalten
- doppelverglaste Fenster
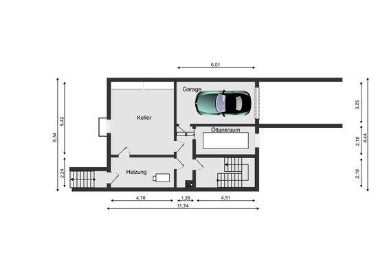
- Garage mit Licht, Strom, Starkstrom und Wasseranschluss
- offener, lichtdurchfluteter...
Preisinformation
2 Garagenstellplätze
Weitere Informationen
Stichworte
Garage vorhanden, Nutzfläche: 110,00 m², Anzahl der Schlafzimmer: 4, Anzahl der Badezimmer: 2, Anzahl Balkone: 1, Balkon-Terrassen-Fläche: 12,00 m², 3 Etagen
Anbieter der Immobilie
Baues-Otte GbR
Bahnhofstraße 6, 50169 Kerpen
Online-ID: 2nq425q
Referenznummer: KH0116
Finde Angebote wie dieses
Hier geht es zu unserem Impressum, den Allgemeinen Geschäftsbedingungen, den Hinweisen zum Datenschutz und nutzungsbasierter Online-Werbung.