
ohne-makler.net - Immobilien selbst vermarkten
Privat von Stefan Aumüller
Kontaktiere den Anbieter schriftlich, es ist keine Telefonnummer hinterlegt.
Preise & Kosten
Provision für Käufer
provisionsfrei
Lage
Die Wohnung befindet sich in zentraler ruhiger Wohnlage von Eggstätt, am Rand des
Naturschutzgebietes Eggstätt-Hemhofer Seenplatte. Supermarkt, Apotheke, Ärzte, Kindergärten, Grundschule und Gastronomie sind fußläufig erreichbar. Hoher Freizeit- und Erholungswert durch Seen, Natur und aktives Vereinsleben.
Infrastruktur...
Die Wohnung
Wohnungslage
Erdgeschoss
Bezug
nach Absprache
Derzeitige Nutzung
vermietet
Wohnanlage
Energie & Heizung
Warum sehe ich diese Anzeige? – Du siehst diese Anzeige basierend auf Ihrer Navigation auf unserer Website und den Suchkriterien, die du verwendet hast.
Energieausweistyp
Bedarfsausweis
Gebäudetyp
Wohngebäude
Endenergiebedarf
117,00 kWh/(m²·a)
Weitere Energiedaten
Energieträger
Öl
Heizungsart
Zentralheizung
Details
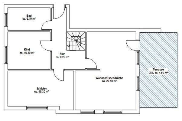
Objektbeschreibung
Zum Verkauf steht eine gepflegte und hochwertig ausgestattete 4-Zimmer-Erdgeschoss-Wohnung in Eggstätt. Eines dieser Zimmer ist der vom Erdgeschoss aus, per Treppe innerhalb der Wohnung aus begehbare helle Hobbyraum im Souterrain. Die Wohnung überzeugt durch einen offenen, durchdachten Grundriss, helle Räume und eine...
Ausstattung
Terrasse, Garten, Keller, Vollbad, Einbauküche, Laminat, Fliesen
Bemerkungen:
Aufteilung und Ausstattung:
- Großzügiger Wohn-/Essbereich mit direktem Zugang zur Terrasse
- Offener Küchenbereich mit hochwertiger Nolte-Küche (2018), Bora-System und Miele-
Geräten - im Kaufpreis enthalten
- Zwei gut...
Preisinformation
1 Carportplatz
1 Stellplatz
Weitere Informationen
Sonstiges
Heizungsart: Zentralheizung
Energieträger: Öl
Fotos stammen aus der Zeit vor Einzug der aktuellen Mieter.
Zum Schutz der Privatsphäre wurden keine aktuellen Innenaufnahmen veröffentlicht.
Makleranfragen nicht erwünscht. Nach § 7 UWG sind unaufgeforderte Kontaktaufnahmen durch Makler ohne...
Anbieter der Immobilie
ohne-makler.net - Immobilien selbst vermarkten
Humboldtstr. 25 A, 21509 Glinde
Privat von Stefan Aumüller
Dein Ansprechpartner
Kontaktiere den Anbieter schriftlich, es ist keine Telefonnummer hinterlegt.
Online-ID: 2nq2l5t
Referenznummer: 428933
Finde Angebote wie dieses
Hier geht es zu unserem Impressum, den Allgemeinen Geschäftsbedingungen, den Hinweisen zum Datenschutz und nutzungsbasierter Online-Werbung.