

im Netzwerk von QUINZZ.
Herr Thomas Behrends
017 ···
Nr. anzeigenPreise & Kosten
Provision für Käufer
3,57 % auf den Kaufpreis inkl. MwSt
Die Provision für den Käufer in Höhe von 3,57 % auf den Kaufpreis inkl. MwSt. ist bei notariellem Vertragsabschluss fällig und vom Käufer an die QUINZZ. GmbH zu zahlen.
Lage
Das Wohnhaus befindet sich am Ortsrand von Mollenfelde, einem ruhigen Ort im Kreis Friedland (37133), und bietet somit eine perfekte Mischung aus ländlicher Idylle und guter Erreichbarkeit. Mollenfelde zeichnet sich durch seine naturnahe Lage aus, ideal für Naturliebhaber und Ruhesuchende. Gleichzeitig sind die nahegelegenen...
Das Haus
Kategorie
Mehrfamilienhaus
Baujahr
1964
Energie & Heizung
Warum sehe ich diese Anzeige? – Du siehst diese Anzeige basierend auf Ihrer Navigation auf unserer Website und den Suchkriterien, die du verwendet hast.
Energieausweistyp
Bedarfsausweis
Gebäudetyp
Wohngebäude
Wesentliche Energieträger
Öl
Gültigkeit
26.02.2026 bis 25.02.2036
Effizienzklasse
E
Endenergiebedarf
131,00 kWh/(m²·a)
Weitere Energiedaten
Energieträger
Öl
Heizungsart
offener Kamin
Details
Objektbeschreibung
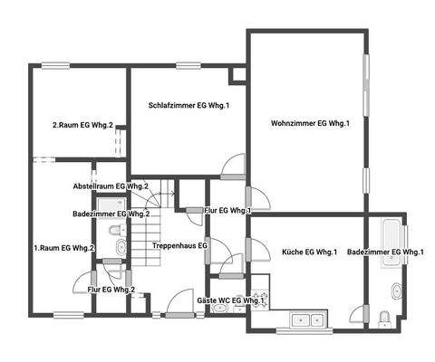
Ein einzigartiges Wohnhaus mit Geschichte: Ursprünglich 1964 als Getreidesilo erbaut und 1994 zu einem großzügigen Wohnhaus umgebaut, bietet diese Immobilie ca. 257m² Wohnfläche auf einem 1.034m² großen Grundstück - ideal für Mehrgenerationenwohnen.
Im Erdgeschoss befinden sich eine fertige Wohnung sowie eine kleinere...
Ausstattung
Ein einzigartiges Wohnhaus auf 1.034m² Grundstück mit 257m² Wohnfläche, ursprünglich 1964 als Getreidesilo erbaut und 1994 umgebaut. Ideal für Mehrgenerationenwohnen oder vielseitige Nutzung.
Erdgeschoss: Fertige Wohneinheit mit Wohnbereich, Schlafzimmer, Küche, Flur, Gäste-WC und klassischem Badezimmer. Eine zweite...
Preisinformation
4 Garagenstellplätze
Weitere Informationen
Sonstiges
Neugierig geworden? Fordern Sie jetzt das ausführliche Exposé an und erhalten Sie eine detaillierte Objektbeschreibung mit weiteren Informationen, Bildern und Grundrissen. Zusätzlich erwartet Sie ein virtueller Rundgang, mit dem Sie die Immobilie ganz bequem von zu Hause aus besichtigen können. So gewinnen Sie...
Dokumente
Anbieter der Immobilie
im Netzwerk von QUINZZ.
Am Mühlenteich 2, 21465 Wentorf bei Hamburg

Online-ID: 2npyr5n
Referenznummer: QUINZZ-2286-TB
Finde Angebote wie dieses
Hier geht es zu unserem Impressum, den Allgemeinen Geschäftsbedingungen, den Hinweisen zum Datenschutz und nutzungsbasierter Online-Werbung.