
Wertkonzepte Immobilien & Hausverwaltung e.K.
Herr Wolfgang Ross
004 ···
Nr. anzeigenPreise & Kosten
Provision für Käufer
Bitte beachte, das Angebot kann bei Vertragsabschluss die Zahlung einer Provision beinhalten. Weitere Informationen erhältst Du vom Anbieter.
Lage
Das Wohnquartier "Alte Post" entsteht in attraktiver, zentrumsnaher Lage von Husum und bietet kurze Wege zu allen Einrichtungen des täglichen Bedarfs. Einkaufsmöglichkeiten, ärztliche Versorgung, Apotheken sowie Schulen befinden sich in der unmittelbaren Umgebung. Auch Cafés und Restaurants sind bequem fußläufig erreichbar...
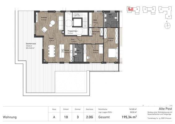
Die Wohnung
Wohnungslage
2. Geschoss
Wohnanlage
Energie & Heizung
Warum sehe ich diese Anzeige? – Du siehst diese Anzeige basierend auf Ihrer Navigation auf unserer Website und den Suchkriterien, die du verwendet hast.
Weitere Energiedaten
Energieträger
Pellets
Heizungsart
Fußbodenheizung
Details
Objektbeschreibung
Willkommen im Wohnquartier "Alte Post" in Husum - einem zukunftsweisenden Neubauprojekt auf dem Gelände des ehemaligen Postverteilzentrums, das moderne Architektur, nachhaltige Bauweise und urbanen Komfort in zentraler Lage vereint. Hier entsteht eines der spannendsten Wohnensembles der Stadt mit insgesamt rund 110...
Ausstattung
Die Immobilie überzeugt durch eine komfortable und zukunftsorientierte Ausstattung. Dreifach verglaste Fenster sowie glatte, weiß gehaltene Eingangs- und Innentüren unterstreichen den hochwertigen Gesamteindruck. In sämtlichen Räumen sorgt eine Fußbodenheizung für angenehme Wärme; die Wärmeversorgung erfolgt effizient und...
Preisinformation
1 Tiefgaragenstellplatz, Kaufpreis: 35.000,00 EUR
Weitere Informationen
Sonstiges
Wohnungsvielfalt im Neubau - Ihr individueller Rückzugsort
In diesem Neubau entstehen verschiedene Wohnungen, die sich jeweils durch kleine Nuancen und Details im Grundriss, in der Lage oder Ausstattung voneinander unterscheiden. Jede einzelne Einheit hat ihren eigenen Charakter - und doch sind die...
Anbieter der Immobilie
Wertkonzepte Immobilien & Hausverwaltung e.K.
Rosenweg 11, 23611 Bad Schwartau
Online-ID: 2npvx5e
Referenznummer: 5300WR_A10
Finde Angebote wie dieses
Hier geht es zu unserem Impressum, den Allgemeinen Geschäftsbedingungen, den Hinweisen zum Datenschutz und nutzungsbasierter Online-Werbung.