
EuV Ostsee GmbH
Engel & Völkers Greifswald
+49 ···
Nr. anzeigenPreise & Kosten
Provision für Käufer
3.57 % inkl. gesetzl. MwSt.
Der Makler-Vertrag mit uns und/oder unserem Beauftragten kommt durch die Bestätigung der Inanspruchnahme unserer Maklertätigkeit in Textform zustande, wie z.B. Weitere Informationen siehe Provisionshinweis.
Lage
Das Einfamilienhaus befindet sich in der beschaulichen Gemeinde Klein Bünzow. Die naturnahe und familienfreundliche Wohnumgebung mit ihrer idyllischen Dorfstruktur, gepflegten Grundstücken und weitläufigen Feldern ist besonders für Paare und Familien attraktiv. Die Nachbarschaft wirkt harmonisch und sicher, sodass Kinder...
Das Haus
Kategorie
Einfamilienhaus
Baujahr
2002
Bezug
sofort
Energie & Heizung
Warum sehe ich diese Anzeige? – Du siehst diese Anzeige basierend auf Ihrer Navigation auf unserer Website und den Suchkriterien, die du verwendet hast.
Energieausweistyp
Bedarfsausweis
Gebäudetyp
Wohngebäude
Baujahr laut Energieausweis
2002
Gültigkeit
seit 09.12.2025
Effizienzklasse
D
Endenergiebedarf
105,50 kWh/(m²·a)
Weitere Energiedaten
Energieträger
Elektro
Heizungsart
Fußbodenheizung, offener Kamin, Zentralheizung
Details
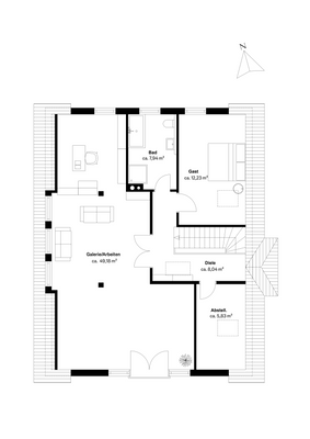
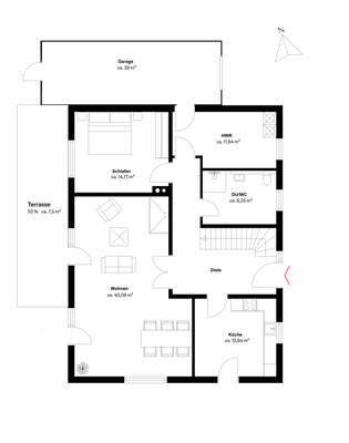
Objektbeschreibung
Entdecken Sie dieses im Jahr 2002 in massiver Bauweise errichtete und sehr gepflegte Einfamilienhaus im beschaulichen Dörfchen Klein Bünzow. Die Immobilie bietet auf einer Wohnfläche von ca. 195 m² ein komfortables und durchdachtes Wohnkonzept mit vielen Gestaltungsmöglichkeiten. Das Haus überzeugt durch seine helle und...
Ausstattung
Blick ins Grüne
Weitere Informationen
Provisionshinweis
3.57 % inkl. gesetzl. MwSt.
Der Makler-Vertrag mit uns und/oder unserem Beauftragten kommt durch die Bestätigung der Inanspruchnahme unserer Maklertätigkeit in Textform zustande, wie z.B. insbesondere die Unterschrift des Suchkundenvertrages und/oder des Objekt-Exposés. Die Höhe der Courtage richtet...
Anbieter der Immobilie
Online-ID: 2npug5b
Referenznummer: I-047AH0-W-047AH0
Finde Angebote wie dieses
Hier geht es zu unserem Impressum, den Allgemeinen Geschäftsbedingungen, den Hinweisen zum Datenschutz und nutzungsbasierter Online-Werbung.