

Olga Schaus Immobilienmaklerin
Frau Olga Schaus
+49 ···
Nr. anzeigenPreise & Kosten
Provision für Käufer
3,57% inkl. der gesetzlichen MwSt bezogen auf den beurkundeten Kaufpreis
Es handelt sich um ein provisionspflichtiges Angebot. Weitere Informationen siehe Provisionshinweis.
Lage
Berlin-Grunewald ist eines der südwestlichen Ortsteile im Bezirk Charlottenburg-Wilmersdorf. Die Lage ist geprägt von grünen Straßen, repräsentativen Alt- und Neubauvillen und wohltuender Ruhe der zahlreichen Parks und Seen.
Der Grunewald selbst eröffnet seltene Freizeitqualitäten direkt vor der Haustür - ideal zum...
Die Wohnung
Wohnungslage
2. Geschoss
Bezug
Die Übergabe erfolgt nach Vereinbarung.
Wohnanlage
Energie & Heizung
Warum sehe ich diese Anzeige? – Du siehst diese Anzeige basierend auf Ihrer Navigation auf unserer Website und den Suchkriterien, die du verwendet hast.
Energieausweistyp
Verbrauchsausweis
Gebäudetyp
Wohngebäude
Wesentliche Energieträger
Gas
Gültigkeit
bis 01.11.2028
Effizienzklasse
F
Endenergieverbrauch
199,00 kWh/(m²·a) - Warmwasser enthalten
Weitere Energiedaten
Energieträger
Gas
Heizungsart
Zentralheizung
Details
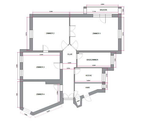
Objektbeschreibung
Die angebotene Wohnung befindet sich in einer herrschaftlichen Mehrparteienvilla in Berlin-Grunewald, nur fünf Minuten zu Fuß vom Kurfürstendamm und S-Bahnhof Halensee entfernt.
Die Wohnung liegt im 2. Obergeschoss und ist über ein sehr schönes und gepflegtes Treppenhaus mit originalen Zierelementen zu erreichen. Der...
Ausstattung
- Klassische Altbauvilla aus dem Jahr 1910
- Zweites Obergeschoss
- Ca. 149,29 m² Wohnfläche
- Ca. 35 m² großes Wohnzimmer
- Zwei große Schlafzimmer mit Hochebenen
- 2015 modernisiertes, tagesbelichtetes Vollbadezimmer
- Separate Einbauküche mit E-Geräten
- West-Balkon
- Hauswirtschaftsraum und...
Weitere Informationen
Provisionshinweis
3,57% inkl. der gesetzlichen MwSt bezogen auf den beurkundeten Kaufpreis
Es handelt sich um ein provisionspflichtiges Angebot. Die Käuferprovision beträgt 3,57% inklusive der gesetzlichen Mehrwertsteuer bezogen auf den beurkundeten Kaufpreis. Der Makler hat im Rahmen seiner Doppeltätigkeit mit dem...
Anbieter der Immobilie
Olga Schaus Immobilienmaklerin
Aschaffenburger Str. 25, 10779 Charlottenburg-Wilmersdorf

Online-ID: 2npsm5j
Referenznummer: OS-20277
Finde Angebote wie dieses
Hier geht es zu unserem Impressum, den Allgemeinen Geschäftsbedingungen, den Hinweisen zum Datenschutz und nutzungsbasierter Online-Werbung.