

Garda Haus Srl
Frau Paola Mosele
+39 ···
Nr. anzeigenPreise & Kosten
Provision für Käufer
ja maklerprovision im Preis nicht inbegriffen inkl. MwSt.
Lage
Die Immobilie befindet sich in Moniga del Garda, in der Via Pergola, in der Nähe des Hauptplatzes des Dorfes. Eine zentrale und strategische Lage, die es Ihnen ermöglicht, alle wichtigen Dienstleistungen zu Fuß zu erreichen, wie Geschäfte, Bars, Restaurants, die Apotheke und das historische Zentrum, ohne auf eine saubere und...
Das Haus
Kategorie
Reihenmittelhaus
Baujahr
2005
Energie & Heizung
Warum sehe ich diese Anzeige? – Du siehst diese Anzeige basierend auf Ihrer Navigation auf unserer Website und den Suchkriterien, die du verwendet hast.
Energieausweistyp
Bedarfsausweis
Gebäudetyp
Wohngebäude
Baujahr laut Energieausweis
2005
Gültigkeit
bis 29.10.2026
Effizienzklasse
G
Endenergiebedarf
223,85 kWh/(m²·a)
Weitere Energiedaten
Heizungsart
Etagenheizung, offener Kamin
Details
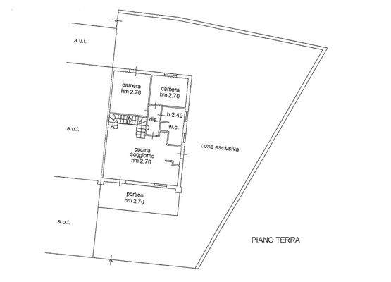
Objektbeschreibung
Willkommen zu einer einzigartigen Immobiliengelegenheit, die für all diejenigen gedacht ist, die sich ein perfektes Gleichgewicht zwischen Unabhängigkeit, viel Platz und dem Komfort einer privilegierten Lage wünschen. Mit Begeisterung präsentieren wir Ihnen dieses prächtige Reihenhaus, ein wahres Juwel, das sich durch einen...
Ausstattung
Das Herzstück der Klimaanlage ist das autonome Heizsystem, eine Lösung, die volle Unabhängigkeit und Kontrolle über den Verbrauch bietet. Ergänzend dazu verteilt ein hochmoderner Pelletofen, der geschickt mit einem Kanalsystem verbunden ist, die Wärme gleichmäßig in den Räumen und schafft eine warme und gemütliche Atmosphäre...
Preisinformation
2 Tiefgaragenstellplätze
Weitere Informationen
Sonstiges
Wir begleiten Sie nach Terminvereinbarung persönlich zu den Objekten und stehen Ihnen während des gesamten Prozesses des Immobilienerwerbs als starker und kompetenter Partner zur Seite. Mit uns gehen Sie keine Kompromisse ein und überlassen nichts dem Zufall. Umfassender Service ist für uns nicht nur ein Wort...
Anbieter der Immobilie
Garda Haus Srl
Via Meucci 77, 25080 PADENGHE SUL GARDA

Online-ID: 2npsg5w
Referenznummer: PV-996
Finde Angebote wie dieses
Hier geht es zu unserem Impressum, den Allgemeinen Geschäftsbedingungen, den Hinweisen zum Datenschutz und nutzungsbasierter Online-Werbung.