
Weingärtner Immobilien GmbH & Co. KG
Herr Kurt Weingärtner
072 ···
Nr. anzeigenPreise & Kosten
Provision für Käufer
provisionsfrei
Lage
Tiefenbronn-Lehningen
Das Bauvorhaben entsteht in einer gefragten und idyllischen Wohnlage im Ortsteil Lehningen.
Das Grundstück, eine derzeit noch unbebaute Baulücke, ist eingebettet in eine ansprechende Nachbarschaftsbebauung, die vorwiegend aus modernen Einfamilienhäusern und Doppelhaushälften besteht.
Das Haus
Kategorie
Doppelhaushälfte
Derzeitige Nutzung
frei
Energie & Heizung
Warum sehe ich diese Anzeige? – Du siehst diese Anzeige basierend auf Ihrer Navigation auf unserer Website und den Suchkriterien, die du verwendet hast.
Energieausweistyp
Bedarfsausweis
Gebäudetyp
Wohngebäude
Wesentliche Energieträger
Luft-/Wasser-Wärmepumpe
Effizienzklasse
A+
Endenergiebedarf
16,72 kWh/(m²·a)
Weitere Energiedaten
Haustyp
Niedrigenergiehaus
Energieträger
Elektro
Heizungsart
Fußbodenheizung
Details
Objektbeschreibung
"... Willkommen im eigenen Zuhause! ..."
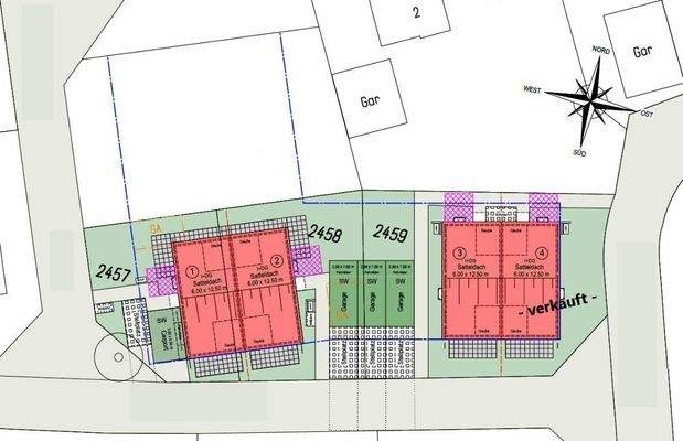
Zum Verkauf stehen vier Doppelhaushälften, die sich durch ihre ansprechende Architektur mit Satteldächern und Gauben auszeichnen.
Die Raumaufteilung ist sorgfältig durchdacht und bietet eine optimale Nutzung der Flächen.
Im Dachgeschoss befinden drei lichtdurchflutete...
Ausstattung
- Umweltfreundliche Luft-Wasser-Wärmepumpe
- Fußbodenheizung auf allen Etagen
- Photovoltaikanlage zur Stromgewinnung
- Gartenterrassen für entspannte Stunden im Freien
- Hochwertige großformatige Fliesen und edle Parkettböden
- Teilweise elektrische Rollläden
- Erfüllung des neuesten gesetzlichen...
Weitere Informationen
Besichtigungstermine
Wir möchten, dass Sie sich in Ihrem neuen Zuhause von Anfang an vollkommen wohlfühlen.
Daher haben Sie die Möglichkeit, Ihr Haus noch vor Baubeginn im modernen Bemusterungszentrum des Generalunternehmers nach Ihren persönlichen Wünschen zu gestalten.
Erfüllen Sie Ihren Traum vom eigenen...
Anbieter der Immobilie

Weingärtner Immobilien GmbH & Co. KG
Deimlingstr. 19, 75175 Pforzheim
Online-ID: 2nprm54
Referenznummer: 67523
Finde Angebote wie dieses
Hier geht es zu unserem Impressum, den Allgemeinen Geschäftsbedingungen, den Hinweisen zum Datenschutz und nutzungsbasierter Online-Werbung.