

Immobiliengesellschaft der Westerwald Bank mbH
Frau Angelina Jung
+49 ···
Nr. anzeigenPreise & Kosten
Provision für Käufer
3,57 % inkl. MwSt.
Lage
Flammersfeld ist eine Ortsgemeinde der Verbandsgemeinde Altenkirchen-Flammersfeld im Landkreis Altenkirchen in Rheinland-Pfalz. Flammersfeld ist ein staatlich anerkannter Erholungsort und gemäß Landesplanung als Grundzentrum ausgewiesen. Alle Einkaufsmöglichkeiten für den täglichen Bedarf, Banken, praktizierender Arzt...
Das Haus
Kategorie
Mehrfamilienhaus
Baujahr
1975
Energie & Heizung
Warum sehe ich diese Anzeige? – Du siehst diese Anzeige basierend auf Ihrer Navigation auf unserer Website und den Suchkriterien, die du verwendet hast.
Energieausweistyp
Bedarfsausweis
Gebäudetyp
Wohngebäude
Baujahr laut Energieausweis
1975
Wesentliche Energieträger
Öl
Gültigkeit
02.02.2026 bis 01.02.2036
Effizienzklasse
G
Endenergiebedarf
233,94 kWh/(m²·a)
Weitere Energiedaten
Haustyp
Massivhaus
Energieträger
Öl
Details
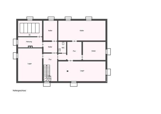
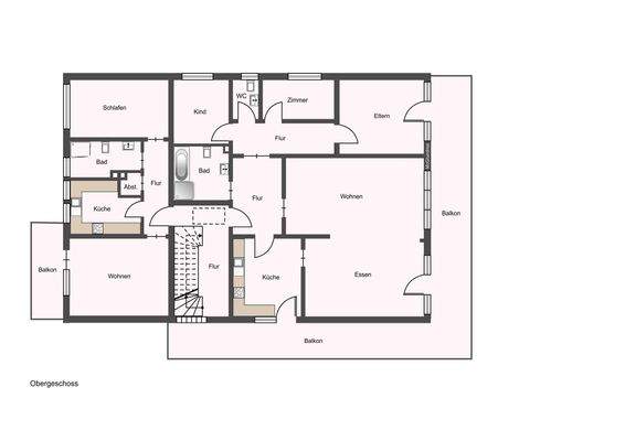
Objektbeschreibung
In direkter Ortslage der Gemeinde Flammersfeld befindet sich dieses gepflegte Wohn- und Geschäftshaus, mit insgesamt zwei Wohneinheiten im Obergeschoss sowie einer Gewerbeeinheit im Erdgeschoss, welches sich vielfältig nutzen lässt. Sei es als Kapitalanlage, zur teilweisen Eigennutzung in Kombination mit Fremdvermietung oder...
Ausstattung
Massivbauweise aus 1975, Außenwände verputzt und gestrichen, Innenwände ebenfalls in massiver Ausführung, voll unterkellert, teilweise massive Geschossdecken; teilweise Holzbalkendecke, Ölzentralheizung (Fa. Viessmann) aus Baujahr 1998 mit zentraler Warmwasserbereitung, Holzfenster (isolierverglast) aus 1975 mit manuellen...
Weitere Informationen
Stichworte
Garage vorhanden, Stellplatz vorhanden, Gesamtfläche: 338,46 m², vermietbare Fläche: 338,46 m², Anzahl der Wohneinheiten: 2, Anzahl der Gewerbeeinheiten: 1, Bundesland: Rheinland-Pfalz
Anbieter der Immobilie

Online-ID: 2npqu5k
Referenznummer: 2 107 4
Finde Angebote wie dieses
Hier geht es zu unserem Impressum, den Allgemeinen Geschäftsbedingungen, den Hinweisen zum Datenschutz und nutzungsbasierter Online-Werbung.