

Dr. Schmidt-Bovendeert Immobilien OHG
Frau Melanie Schmidt
026 ···
Nr. anzeigenPreise & Kosten
Provision für Käufer
3,57 % inkl. MwSt.
Lage
Das Einfamilienhaus befindet sich in 57520 Langenbach bei Kirburg, Nähe der B 414. Im Ort selbst erreicht man fußläufig in ca. 9 Minuten eine Kindertagesstätte. Die Bäckerei, fußläufig in 3 Minuten erreichbar, versorgt Sie mit frischen Backwaren. Die Grundschule Neunkhausen ist nur 3 km entfernt erreichbar. Die Städte Bad...
Das Haus
Kategorie
Einfamilienhaus
Baujahr
1940
Bezug
sofort
Energie & Heizung
Warum sehe ich diese Anzeige? – Du siehst diese Anzeige basierend auf Ihrer Navigation auf unserer Website und den Suchkriterien, die du verwendet hast.
Energieausweistyp
Bedarfsausweis
Gebäudetyp
Wohngebäude
Baujahr laut Energieausweis
1940
Wesentliche Energieträger
GAS
Gültigkeit
bis 12.11.2035
Effizienzklasse
H
Endenergiebedarf
290,39 kWh/(m²·a)
Weitere Energiedaten
Haustyp
Massivhaus
Heizungsart
Zentralheizung
Details
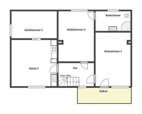
Objektbeschreibung
Willkommen in Ihrem neuen Zuhause in Langenbach bei Kirburg! Dieses charmante Ein- bis Zweifamilienhaus, ursprünglich im Jahr 1940 erbaut und 1969 erweitert, bietet eine einzigartige Gelegenheit für all jene, die historisches Flair mit modernem Wohnkomfort verbinden möchten. Das ursprüngliche Fachwerkhaus wurde überwiegend...
Ausstattung
- Dacheindeckung mit Kunstschiefer
- Fassadenverkleidung mit Kunstschiefer
- Kunststofffenster mit Rollläden zweifach verglast (überwiegend 90er Jahre)
- Gas-Zentralheizung 2004
- Balkon
- Scheune (als Garage nutzbar oder ausbaufähig)
- freistehende Garage
- Garten- und Wiesengrundstück
Weitere Informationen
Sonstiges
Die in unserem Exposé enthaltenen Aussagen basieren ausschließlich auf Informationen, die uns vom Verkäufer zur Verfügung gestellt wurden. Wir übernehmen daher keine Gewähr für die Vollständigkeit und Richtigkeit der Angaben. Das Immobilienangebot ist freibleibend. Irrtum und Zwischenverkauf bleiben...
Anbieter der Immobilie

Online-ID: 2npqb5d
Referenznummer: 4636
Finde Angebote wie dieses
Hier geht es zu unserem Impressum, den Allgemeinen Geschäftsbedingungen, den Hinweisen zum Datenschutz und nutzungsbasierter Online-Werbung.