

Thomas Horn Immobilien
Herr Dipl.-Ing.(FH) Thomas Horn
097 ···
Nr. anzeigenPreise & Kosten
Mindestpreis, Verkauf gegen Angebot
Provision für Käufer
4,76 % inkl.19% MWS.
Das Renditeobjekt
Kategorie
Wohn- und Geschäftshaus
Baujahr
1991
Details
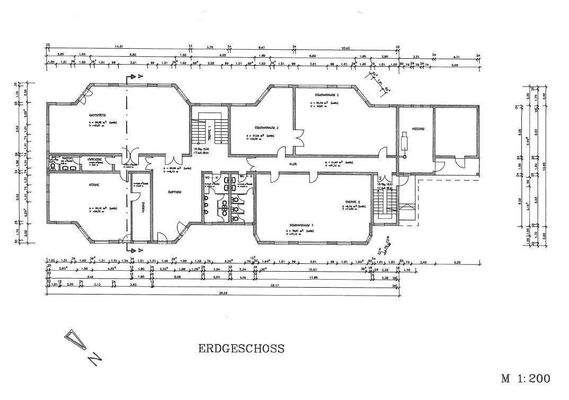
Objektbeschreibung
Inmitten des Thüringer Waldes im Naturpark Schiefergebirge auf rund 600 m ü.NN auf einem Hochplateau gelegen, wird ein Immobilienprojekt in fertig gestelltem Rohbauzustand angeboten.
Das 11.600 qm große Grundstück liegt im schönen Ort Dittrichshütte, ca. 12 km entfernt von der Stadt Saalfeld/Saale. Die nächsten...
Anbieter der Immobilie
Thomas Horn Immobilien
Bachstr. 10, 97422 Schweinfurt

Online-ID: 2nply5y
Finde Angebote wie dieses
Hier geht es zu unserem Impressum, den Allgemeinen Geschäftsbedingungen, den Hinweisen zum Datenschutz und nutzungsbasierter Online-Werbung.