
Areal Immobilien e.K.
Herr Alexander Breitenbach
015 ···
Nr. anzeigenPreise & Kosten
in Nebenkosten enthalten
Kaution
3 Warmmieten + 19% MwSt.
Provision für Mieter
3 Warmmieten + 19% Mehrwertsteuer
Warum sehe ich diese Anzeige? – Du siehst diese Anzeige basierend auf Ihrer Navigation auf unserer Website und den Suchkriterien, die du verwendet hast.
Lage
Schwarzenbek liegt ideal im sogenannten Speckgürtel vor den Toren Hamburgs und trägt die Auszeichnung Europastadt, die ihr der Europarat für das Engagement der europäischen Integration verlieh. Sehr gute Verkehrsanbindungen sind gegeben: die Bahnlinie Hamburg-Berlin durchquert die Stadt Schwarzenbek. In ca. 20 Minuten kann...
Die Industriefläche
Kategorie
Lagerhalle
Bezug
sofort
Derzeitige Nutzung
frei
Mindestmietdauer
24 Monate
Energie & Heizung
Warum sehe ich diese Anzeige? – Du siehst diese Anzeige basierend auf Ihrer Navigation auf unserer Website und den Suchkriterien, die du verwendet hast.
Details
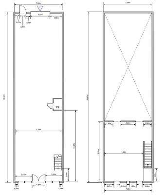
Objektbeschreibung
EG Lager Produktion Ausstellung
264 m²
Video:
https://www.instagram.com/reel/C0w2YCzM5Ex/?igshid=MzRlODBiNWFlZA==
Aufteilung:
Lager EG= 196 m2
Büro 1.OG= 68 m2
Der Grundriss ist aus Leichtbauwänden gestaltet und ist veränderbar.
Die Halle verfügt über ein großzügiges 2,98 Meter...
Ausstattung
Video:
https://www.instagram.com/reel/C0w2YCzM5Ex/?igshid=MzRlODBiNWFlZA==
- Nutzung: Produktion, Lager, Handel, Ausstellung
- Elektro-Grundinstallation von Steckdosen, Kraftsteckdosen und Vorinstallation für Beleuchtung vorhanden und sofort nutzbar
- Eine ebenerdige Anbindung über ein großes...
Anbieter der Immobilie
Areal Immobilien e.K.
Große Bleichen 21, 20354 Hamburg
Online-ID: 2npkm5j
Referenznummer: 264 CAMP
Finde Angebote wie dieses
Hier geht es zu unserem Impressum, den Allgemeinen Geschäftsbedingungen, den Hinweisen zum Datenschutz und nutzungsbasierter Online-Werbung.