

Boll Immo
Herr Christian Boll
+49 ···
Nr. anzeigenPreise & Kosten
Provision für Käufer
3,57 % inkl. MWSt
Lage
Das Objekt liegt in Randlage des Ortsteils Schachen in der Gemeinde Albbruck. In der Gemeinde entsteht das neue Zentralklinikum des Landkreises Waldshut. Die bestehende sehr gute Infrastruktur mit Schwimmbad, Gemeinschaftsschule, Lebensmittelmärkten und vielen kleinen Läden wird in diesem Zusammenhang nochmals deutlich...
Das Haus
Kategorie
Mehrfamilienhaus
Baujahr
1893
Bezug
nach Vereinbarung
Energie & Heizung
Warum sehe ich diese Anzeige? – Du siehst diese Anzeige basierend auf Ihrer Navigation auf unserer Website und den Suchkriterien, die du verwendet hast.
Energieausweistyp
Bedarfsausweis
Gebäudetyp
Wohngebäude
Baujahr laut Energieausweis
1980
Wesentliche Energieträger
ELEKTRO
Gültigkeit
bis 04.09.2034
Effizienzklasse
F
Endenergiebedarf
178,30 kWh/(m²·a)
Weitere Energiedaten
Energieträger
Elektro, Holz
Heizungsart
Zentralheizung
Details
Objektbeschreibung
Dieses Anwesen begeistert alle, die Raum, Ruhe und Natur zu schätzen wissen. In attraktiver Ortsrandlage gelegen, bietet das außergewöhnlich große Grundstück mit rund 3.204 m² Fläche vielfältige Möglichkeiten - vom weitläufigen Garten über Tierhaltung bis hin zum eigenen kleinen Naturparadies.
Das ursprünglich ca. 1893...
Ausstattung
- Grundstück: ca. 3.204 m² in attraktiver Ortsrandlage
- Gebäude: Ursprung ca. 1893, 1980 umgebaut und modernisiert
- Wohnfläche gesamt: ca. 230 m²
- kein Denkmalschutz
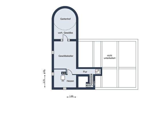
Erdgeschoss:
- ca. 154 m² Wohnfläche
- 7 Zimmer, Küche, Bad
- 2 separate WCs
- Terrasse mit Blick ins große Grundstück
-...
Weitere Informationen
Sonstiges
Dieses Anwesen bietet eine seltene Kombination aus großzügigem Grundstück, vielseitigen Nutzungsmöglichkeiten und naturnaher Lage. Ob als großzügiges Zuhause für die Familie, für Mehrgenerationenwohnen, Wohnen und Arbeiten unter einem Dach oder als Projekt mit zusätzlichem Entwicklungspotenzial - hier eröffnen...
Anbieter der Immobilie
Boll Immo
Unterer Hardtweg 5, 79790 Küssaberg

Online-ID: 2npkd5v
Referenznummer: 2025-269
Finde Angebote wie dieses
Hier geht es zu unserem Impressum, den Allgemeinen Geschäftsbedingungen, den Hinweisen zum Datenschutz und nutzungsbasierter Online-Werbung.