
Rudkowski & Hag Immobilien GmbH
Frau Lea Lerch
004 ···
Nr. anzeigenPreise & Kosten
Provision für Käufer
Bitte beachte, das Angebot kann bei Vertragsabschluss die Zahlung einer Provision beinhalten. Weitere Informationen erhältst Du vom Anbieter.
Lage
Willkommen im begehrten Kölner Stadtteil Widdersdorf, wo eine exklusive Penthouse-Wohnung das städtische Wohnen mit grüner Lebensqualität vereint.
Die Lage zeichnet sich durch ihre hervorragende Anbindung und die Nähe zu vielfältigen Nahversorgungsmöglichkeiten aus. Inmitten dieser charmanten Umgebung finden...
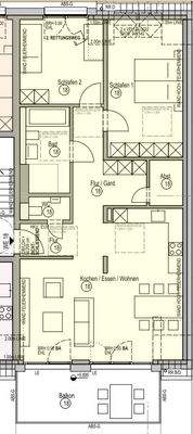
Die Wohnung
Wohnungslage
2. Geschoss (Dachgeschoss)
Bezug
kurzfristig
Wohnanlage
Energie & Heizung
Warum sehe ich diese Anzeige? – Du siehst diese Anzeige basierend auf Ihrer Navigation auf unserer Website und den Suchkriterien, die du verwendet hast.
Energieausweistyp
Bedarfsausweis
Gebäudetyp
Wohngebäude
Baujahr laut Energieausweis
2023
Wesentliche Energieträger
LUFTWP
Gültigkeit
bis 07.05.2033
Effizienzklasse
A
Endenergiebedarf
30,00 kWh/(m²·a)
Weitere Energiedaten
Energieträger
Elektro, Gas
Heizungsart
Fußbodenheizung
Details
Objektbeschreibung
Liebe Interessentin,
lieber Interessent,
wir freuen uns über Ihren Besuch und Ihr Interesse an dieser Immobilie.
Bei Fragen stehen wir Ihnen gerne telefonisch und per E-Mail zur Verfügung.
Besichtigungstermine stimmen wir telefonisch ab und werden selbstverständlich ausschließlich als Einzeltermine...
Ausstattung
- Altersgerechte und barrierefreie Gestaltung
- Geräumiger Balkon welcher zum Verweilen einlädt
- Modernste Fenstertechnik mit dreifacher Isolierverglasung, sowie elektrischer Verdunklungsmöglichkeit
- Großzügiger Abstellraum beispielweise für Vorräte
- Bodenbeläge, Fliesen sowie...
Preisinformation
1 Tiefgaragenstellplatz, Kaufpreis: 29.500,00 EUR
Weitere Informationen
Sonstiges
Die Prader Bauträger GmbH präsentiert mit Stolz ihr Wohnprojekt "Essenzia" in Köln-Widdersdorf. Diese exklusive Wohnanlage umfasst zwei moderne Mehrfamilienhäuser mit jeweils neun hochwertigen Wohneinheiten. Die Wohnungen sind nahezu bezugsfertig, und die gesamte Fertigstellung für das Jahr 2025 geplant. Die...
Anbieter der Immobilie
Rudkowski & Hag Immobilien GmbH
Zusestraße 44, 50859 Köln
Online-ID: 2npgk5t
Referenznummer: 24RH141_23
Finde Angebote wie dieses
Hier geht es zu unserem Impressum, den Allgemeinen Geschäftsbedingungen, den Hinweisen zum Datenschutz und nutzungsbasierter Online-Werbung.