
Immobilienhaus Wagner GmbH
Herr Eric Lucyga
015 ···
Nr. anzeigenPreise & Kosten
Provision für Käufer
3,57 % inkl. gesetzlicher MwSt..
Die Angaben zum Objekt stammen vom Verkäufer. Für die Richtigkeit und Vollständigkeit wird keine Haftung übernommen. Weitere Informationen siehe Provisionshinweis.
Lage
Das Objekt liegt in ruhiger, dörflicher Wohnlage in Mechelsdorf bietet ein naturnahes Umfeld mit viel Grün und Weitblick. Die Dorfstraße ist die zentrale Ortsstraße und geprägt von Einfamilienhäusern sowie landwirtschaftlich geprägter Umgebung - ideal für alle, die entspanntes Wohnen abseits des Trubels schätzen.
Die...
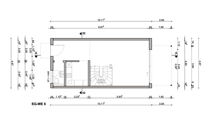
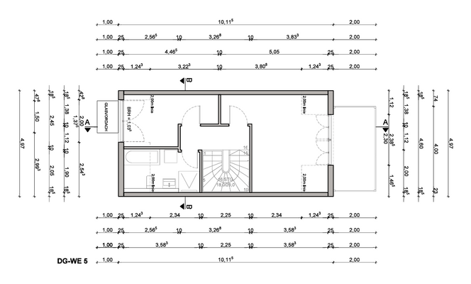
Das Haus
Kategorie
Reihenmittelhaus
Baujahr
2023
Bezug
nach Absprache
Energie & Heizung
Warum sehe ich diese Anzeige? – Du siehst diese Anzeige basierend auf Ihrer Navigation auf unserer Website und den Suchkriterien, die du verwendet hast.
Energieausweistyp
Bedarfsausweis
Gebäudetyp
Wohngebäude
Wesentliche Energieträger
Erdwärme
Gültigkeit
24.07.2023 bis 23.07.2033
Endenergiebedarf
12,20 kWh/(m²·a)
Weitere Energiedaten
Energieträger
Erdwärme
Details
Objektbeschreibung
Mit dem Projekt "Ostseeresidenzen Mechelsdorf" entstehen insgesamt sechs moderne Reihenhäuser in ruhiger, naturnaher Lage und in unmittelbarer Nähe zur Ostsee. Das Neubauensemble verbindet nachhaltige Bauweise mit zeitgemäßem Wohnkomfort und hoher Energieeffizienz - ideal für Eigennutzer wie auch Kapitalanleger.
Die...
Ausstattung
. Reihenmittelhaus mit 3 Zimmern
. KfW-40-Effizienzstandard
. Erdwärmepumpe
. Fußbodenheizung
. Holz-Aluminium-Fenster mit 3-fach-Verglasung
. Wärmeschutz Textilscreens
. Ökologische Holzrahmenbauweise
. Lehmputz im Innenbereich
. Fußböden nach Wahl
. Individuell wählbare Sanitärobjekte
...
Preisinformation
1 Stellplatz
Weitere Informationen
Provisionshinweis
3,57 % inkl. gesetzlicher MwSt..
Die Angaben zum Objekt stammen vom Verkäufer. Für die Richtigkeit und Vollständigkeit wird keine Haftung übernommen. Der Käufer zahlt im Erfolgsfall an die Firma Immobilienhaus Wagner GmbH eine Käufer-Maklerprovision in Höhe von 3,57 % inkl. gesetzlicher MwSt.. Die...
Anbieter der Immobilie
Online-ID: 2npf75p
Referenznummer: 3103
Finde Angebote wie dieses
Hier geht es zu unserem Impressum, den Allgemeinen Geschäftsbedingungen, den Hinweisen zum Datenschutz und nutzungsbasierter Online-Werbung.