
VON POLL IMMOBILIEN Herrenberg - MM-Immobilien GmbH
VON POLL IMMOBILIEN Shop Böblingen
004 ···
Nr. anzeigenPreise & Kosten
Provision für Käufer
Käuferprovision beträgt 3,57 % (inkl. MwSt.) des beurkundeten Kaufpreises
Lage
Maichingen besticht durch seine ausgewogene Altersstruktur und eine stabile Bevölkerungszahl von rund 12.300 Einwohnern, eingebettet in eine wirtschaftlich starke Region mit exzellenter Infrastruktur. Die Nähe zu Stuttgart eröffnet vielfältige Möglichkeiten für kulturelle und gesellschaftliche Teilhabe, während die ruhige...
Die Wohnung
Wohnungslage
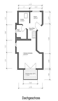
Dachgeschoss
Wohnanlage
Energie & Heizung
Warum sehe ich diese Anzeige? – Du siehst diese Anzeige basierend auf Ihrer Navigation auf unserer Website und den Suchkriterien, die du verwendet hast.
Energieausweistyp
Bedarfsausweis
Gebäudetyp
Wohngebäude
Baujahr laut Energieausweis
1994
Wesentliche Energieträger
ELECTRICITY
Gültigkeit
bis 03.01.2029
Effizienzklasse
D
Endenergiebedarf
111,80 kWh/(m²·a)
Weitere Energiedaten
Energieträger
Elektro
Heizungsart
Fußbodenheizung
Details
Objektbeschreibung
Diese gepflegte 2-Zimmer-Dachgeschosswohnung befindet sich im 3. Stock (Dachgeschoss) ohne Aufzug eines im Jahr 1994 fertiggestellten 8-Familienhauses und eignet sich hervorragend für Singles oder Paare, die Wert auf eine helle und freundliche Atmosphäre und eine praktische Raumaufteilung legen. Das Haus liegt am ruhigen...
Ausstattung
- 2-Zimmer-Dachgeschoss mit Süd-Balkon
- 3. Obergeschoss ohne Aufzug
- Ortsrandlage an den Feldern / Wiesen
- Gepflegter Zustand
- Aktuell wurde die Fassade saniert (Ende 2025)
- 2007 alle Fenster in Kunststofffenster erneuert
- Fußbodenheizung mit...
Preisinformation
1 Garagenstellplatz
Weitere Informationen
Sonstiges
GELDWÄSCHE:
Als Immobilienmaklerunternehmen ist die von Poll Immobilien GmbH nach § 2 Abs. 1 Nr. 14 und § 11 Abs. 1, 2 Geldwäschegesetz (GwG) dazu verpflichtet, bei der Begründung einer Geschäftsbeziehung die Identität des Vertragspartners festzustellen und zu überprüfen, bzw. sobald ein ernsthaftes...
Anbieter der Immobilie
VON POLL IMMOBILIEN Herrenberg - MM-Immobilien GmbH
Tübinger Straße 41, 71083 Herrenberg
Online-ID: 2npay57
Referenznummer: 26455001
Finde Angebote wie dieses
Hier geht es zu unserem Impressum, den Allgemeinen Geschäftsbedingungen, den Hinweisen zum Datenschutz und nutzungsbasierter Online-Werbung.