

Lutz Hotel- Betriebs- und Immobiliengesellschaft mbH
Herr Jochen Lutz
071 ···
Nr. anzeigenPreise & Kosten
Provision für Käufer
3,00 % (inkl. USt)
Lage
Die Doppelhaushälfte liegt in zentraler Lage von Metzingen mit kurzen Wegen zu Einkaufsmöglichkeiten, Bushaltestelle und dem Bahnhof.
Grundschule, Kita und Kindergarten sind bequem zu Fuß erreichbar; Realschule und Gymnasium liegen nur wenige Fahrradminuten entfernt. Die Anbindung an die B 313 und B 28 ist...
Das Haus
Kategorie
Doppelhaushälfte
Baujahr
1950
Bezug
Sofort
Energie & Heizung
Warum sehe ich diese Anzeige? – Du siehst diese Anzeige basierend auf Ihrer Navigation auf unserer Website und den Suchkriterien, die du verwendet hast.
Energieausweistyp
Bedarfsausweis
Gebäudetyp
Wohngebäude
Baujahr laut Energieausweis
1950
Wesentliche Energieträger
Strom
Effizienzklasse
G
Endenergiebedarf
215,46 kWh/(m²·a)
Weitere Energiedaten
Haustyp
Massivhaus
Energieträger
Elektro
Heizungsart
Ofen
Details
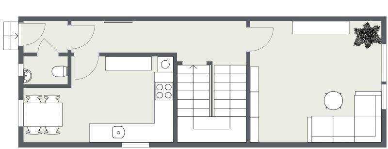
Objektbeschreibung
Die angebotene Doppelhaushälfte überrascht trotz ihrer kompakten Maße mit einem durchdachten Grundriss und fünf gut nutzbaren Zimmern auf nahezu 100 m² Wohnfläche. Das Haus wurde ab 1950 errichtet und über die Jahre erweitert und modernisiert. Fassade und Dach sind gedämmt; Fenster, Sanitärbereiche und Leitungen wurden in...
Weitere Informationen
Sonstiges
Die vom Käufer zu zahlende Provision beträgt 3,00 % des Kaufpreises (inkl. gesetzlicher USt) und ist mit notarieller Beurkundung verdient und fällig. Wir sind für beide Parteien des Kaufvertrages tätig und erheben in den Fällen des § 656c BGB vom Käufer und Verkäufer eine Provision in gleicher Höhe.
Alle...
Anbieter der Immobilie

Online-ID: 2npan5m
Referenznummer: A1631
Finde Angebote wie dieses
Hier geht es zu unserem Impressum, den Allgemeinen Geschäftsbedingungen, den Hinweisen zum Datenschutz und nutzungsbasierter Online-Werbung.