
Horst Knopf Immobilien
Herrn Horst Knopf
062 ···
Nr. anzeigenPreise & Kosten
Provision für Käufer
1,79% aus dem Kaufpreis (inkl. 19% MWSt.)
Lage
Das Objekt liegt im Ortsteil St. Leon. Bushaltestelle ist in wenigen Gehminuten erreichbar. Zum nächst gelegenen Bahnhof sind es ca. 6 km. In der Gemeinde befinden sich Geschäfte des täglichen Bedarfs sowie grundlegende Schulen und Ärzte. In der Straße befinden sich überwiegend freistehende Wohnhäuser mit 1-2geschossiger...
Das Haus
Kategorie
Einfamilienhaus
Baujahr
1946
Bezug
sofort
Energie & Heizung
Warum sehe ich diese Anzeige? – Du siehst diese Anzeige basierend auf Ihrer Navigation auf unserer Website und den Suchkriterien, die du verwendet hast.
Weitere Energiedaten
Energieträger
Gas
Heizungsart
Zentralheizung
Details
Objektbeschreibung
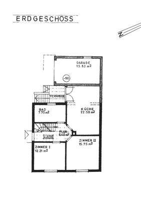
Das Wohngebäude wurde in 1 ½-geschossiger Bauweise mit einseitiger Grenzbebauung errichtet. Die Garage ist in das Haus integriert. Im Hof und in der Scheune können noch ca. 2 bis 3 Fahrzeuge abgestellt werden.
Über einen Korridor zwischen Waschküche und Scheune gelangt man in den Nutzgarten mit einem...
Ausstattung
Gas-Zentralheizung (2014)
Holz-Isolierglasfenster, braun
Holztüren
Bad im EG mit Fenster, Wanne, Dusche, WC, Waschtisch, Waschmaschinenanschluss
Bad im OG mit Fenster, Wanne, Waschtisch, WC
Bodenbeläge: überwiegend Kunststoffbelag, 3 Zimmer mit Parkettbelag, Bäder: Fliesen, Flur: Teppichboden.
Die Treppe...
Weitere Informationen
Sonstiges
Dieses Exposé entstand in freundlicher Zusammenarbeit mit dem Verkäufer.
Heizungsart:
Heizkoerper
Anbieter der Immobilie
Horst Knopf Immobilien
Mainweg 1, 68789 St. Leon-Rot
Online-ID: 2np8k5x
Referenznummer: 226031
Finde Angebote wie dieses
Hier geht es zu unserem Impressum, den Allgemeinen Geschäftsbedingungen, den Hinweisen zum Datenschutz und nutzungsbasierter Online-Werbung.