
Castellanum
Firma Castellanum Lazise
003 ···
Nr. anzeigenPreise & Kosten
Provision für Käufer
4% zzgl. MwSt.
Lage
Torri del Benaco ist ein idyllisches Hafenstädtchen am Ostufer des Gardasees.
Ganzjährig milde Temperaturen und viele Sonnenstunden bestimmen das außergewöhnliche Klima.
Mit seinem authentischen Lebensgefühl gilt Torri als exklusiver Geheimtipp mit dem beeindruckenden Panoramablick auf den See und auf die wunderschönen...
Die Wohnung
Wohnungslage
Erdgeschoss
Bezug
2026
Wohnanlage
Energie & Heizung
Warum sehe ich diese Anzeige? – Du siehst diese Anzeige basierend auf Ihrer Navigation auf unserer Website und den Suchkriterien, die du verwendet hast.
Weitere Energiedaten
Heizungsart
Fußbodenheizung, Luft-/Wasser-Wärmepumpe
Details
Objektbeschreibung
Dieses elegante Neubauprojekt liegt ruhig und ganz nah am Zentrum von Torri del Benaco. Es umfasst nur sieben Wohneinheiten, die sich auf vier harmonisch gestaltete Gebäude verteilen und sich harmonisch in die Umgebung einfügen.
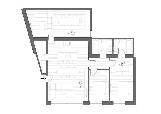
Diese 3-/4-Zimmerwohnung bietet eine offene Wohnküche, zwei Schlafzimmer - eines davon mit...
Ausstattung
Die Wohnung ist so gut wie bezugsfertig und die Kombination aus Neubau, ruhiger und dennoch zentraler Lage, fußläufiger Nähe zu Bars und Restaurants sowie traumhaftem Seeblick ist am Gardasee eine absolute Seltenheit - und macht dieses Projekt zu einer wertbeständigen Investition und einem ganzjährigen Lebensraum mit...
Weitere Informationen
Stichworte
Verkaufsfläche: 133,00 m², Anzahl der Schlafzimmer: 2, Anzahl der Badezimmer: 2, Anzahl Terrassen: 1, Balkon-Terrassen-Fläche: 24,00 m², Gartenfläche: 29,00 m², 1 Etagen
Anbieter der Immobilie
Castellanum
Trattengasse 7, 37042 Brixen (BZ)
Online-ID: 2np685x
Referenznummer: G00435_1
Finde Angebote wie dieses
Hier geht es zu unserem Impressum, den Allgemeinen Geschäftsbedingungen, den Hinweisen zum Datenschutz und nutzungsbasierter Online-Werbung.