

Immobilienprofis.Bayern - Vertriebspartner von Wand-Massivhaus
Herr Patrick Gilg
015 ···
Nr. anzeigenPreise & Kosten
Provision für Käufer
4,76% inkl. MwSt aus dem Grundstückspreis. Das Haus ist selbstverständlich provisionsfrei
Lage
1A-Lage
Ihr neues Zuhause in Freising-Neustift - naturnahes Wohnen mit urbanem Anschluss
++ ruhige und familienfreundliche Lage im östlichen Stadtgebiet von Freising ++ Top Anbindung an S-Bahn, Flughafen und A92 ++ hohe Lebensqualität in historischer Domstadt ++
Top S-Bahn Anbindung:
. ca. 6...
Das Haus
Kategorie
Doppelhaushälfte
Baujahr
2026
Bezug
9 Mon. nach Baubeginn
Energie & Heizung
Warum sehe ich diese Anzeige? – Du siehst diese Anzeige basierend auf Ihrer Navigation auf unserer Website und den Suchkriterien, die du verwendet hast.
Energieausweistyp
Bedarfsausweis
Gebäudetyp
Wohngebäude
Wesentliche Energieträger
Wärmepumpe
Effizienzklasse
A+
Weitere Energiedaten
Haustyp
Massivhaus
Heizungsart
Fußbodenheizung, Luft-/Wasser-Wärmepumpe
Details
Objektbeschreibung
Immobilienprofis.Bayern - Vertriebspartner von Wand-MassivHaus - DAHEIM STATT NUR ZU HAUSE!
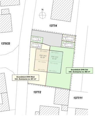
Doppelhaushälfte Salzburg mit Kellergeschoss (Neubauprojekt - siehe Grundstücksplanung)
Unser Konzept:
Modernes Wohnen auf drei Ebenen. Den Wohn-Ess-Bereich, die Küche sowie den Garderobenbereich und das Gäste WC...
Ausstattung
Das Haus wird von Wand-MassivHaus in Massiv-Bauweise erstellt und im Schlüsselfertigen Zustand an Sie übergeben. Lediglich die Bodenbeläge (außer Bad und WC) und die Malerarbeiten müssen Sie in Eigenleistung erstellen oder an uns vergeben.
Genaueres können Sie unserer Bau- u. Leistungsbeschreibung entnehmen und/oder...
Preisinformation
2 Stellplätze
Weitere Informationen
Sonstiges
Der hier angebotene Preis beinhaltet den Kaufpreis für eine ausgebaute Doppelhaushälfte mit Keller, inkl. Grundstück, zzgl. Erwerbs- und Baunebenkosten.
+++ Bitte informieren Sie sich vor der Absprache eines Beratungstermins bei Ihrer Bank oder Ihrem Finanzierer bzgl. Ihrer Budgetplanung...
Dokumente
Anbieter der Immobilie
Immobilienprofis.Bayern - Vertriebspartner von Wand-Massivhaus
Peter-Dörfler-Str. 30, 86199 Augsburg

Online-ID: 2np5d5v
Referenznummer: 124628095#4LZsy3
Finde Angebote wie dieses
Hier geht es zu unserem Impressum, den Allgemeinen Geschäftsbedingungen, den Hinweisen zum Datenschutz und nutzungsbasierter Online-Werbung.