
m² Immobilien GmbH
Frau Claudia Engelhardt
004 ···
Nr. anzeigenPreise & Kosten
Provision für Käufer
2,98 inkl. MwSt. inkl. MwSt.
Lage
Das charmante Zweifamilienhaus befindet in einer ruhigen Anliegerstraße in einer attraktiven Wohngegend von Hilden. Die Nachbarschaft zeichnet sich durch gepflegte Einfamilienhäuser aus und der nahegelegene historische Stadtkern von Hilden lädt mit seinen Cafés, Restaurants und Boutiquen zum gemütlichen Bummeln ein. Für...
Das Haus
Kategorie
Mehrfamilienhaus
Baujahr
1971
Energie & Heizung
Warum sehe ich diese Anzeige? – Du siehst diese Anzeige basierend auf Ihrer Navigation auf unserer Website und den Suchkriterien, die du verwendet hast.
Energieausweistyp
Bedarfsausweis
Gebäudetyp
Wohngebäude
Baujahr laut Energieausweis
2014
Wesentliche Energieträger
GAS
Gültigkeit
bis 16.08.2035
Endenergiebedarf
167,70 kWh/(m²·a)
Weitere Energiedaten
Energieträger
Gas
Heizungsart
Zentralheizung
Details
Objektbeschreibung
In einer der begehrtesten Wohnlagen Hildens liegt dieses zeitlose Zweifamilienhaus. Das massiv erbaute Haus aus dem Jahr 1971 hat eine Klinkerfassade und ist einseitig angebaut. Das Haus erstreckt sich über zwei Etagen und bietet eine großzügige, komfortable Aufteilung für individuelle Gestaltungsmöglichkeiten: ob als...
Weitere Informationen
Sonstiges
Das Objekt kann nach Absprache übernommen werden.
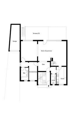
Zum Haus gehört eine Garage und zwei Außenstellplätze.
Die Fotoaufnahmen vom Obergeschoss werden nachgeliefert. Das bestehende Mietverhältnis endet in Kürze und ist damit für die Beurteilung des Objekts ohne Bedeutung.
Stichworte
Nutzfläche...
Anbieter der Immobilie
m² Immobilien GmbH
Gräfrather Markt 4, 42653 Solingen
Online-ID: 2np3f5u
Referenznummer: 5209
Finde Angebote wie dieses
Hier geht es zu unserem Impressum, den Allgemeinen Geschäftsbedingungen, den Hinweisen zum Datenschutz und nutzungsbasierter Online-Werbung.