
Fair-Lokal.Immobilien
Herr Cosmin Orasanu
017 ···
Nr. anzeigenPreise & Kosten
Provision für Käufer
3,57% inklusive Mehrwertsteuer
Lage
Die zentrale Lage dieser Eigentumswohnung in Ottobrunn bietet Ihnen eine hervorragende Infrastruktur. In unmittelbarer Nähe finden Sie alles, was Sie für den täglichen Bedarf benötigen: Eine Apotheke, Einkaufsmöglichkeiten und Haltestellen für Busverbindungen sind bequem zu Fuß erreichbar.
Die gute Anbindung an...
Die Wohnung
Wohnungslage
1. Geschoss
Wohnanlage
Energie & Heizung
Warum sehe ich diese Anzeige? – Du siehst diese Anzeige basierend auf Ihrer Navigation auf unserer Website und den Suchkriterien, die du verwendet hast.
Weitere Energiedaten
Energieträger
Gas
Heizungsart
Zentralheizung
Details
Objektbeschreibung
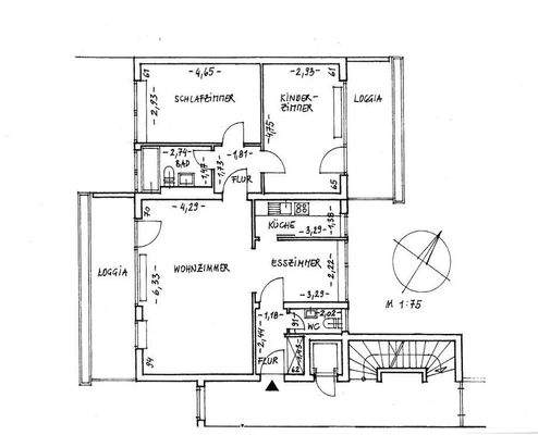
Willkommen in Ihrem neuen Zuhause, einer traumhaft schönen Eigentumswohnung, die mit einem modernen und stilvollen Ambiente besticht. Diese top-renovierte 3-Zimmer-Wohnung im Herzen von Ottobrunn erstreckt sich über großzügige 93 m² und bietet Ihnen alles, was das Herz begehrt. Mit zwei lichtdurchfluteten Schlafzimmern und...
Ausstattung
Die gehobene Ausstattung dieser Wohnung erfüllt höchste Ansprüche und lässt keine Wünsche offen. Die Bodenbeläge aus Fliesen und Laminat sind nicht nur optisch ansprechend, sondern auch äußerst pflegeleicht und sorgen für ein angenehmes Wohnklima.
Der ca. 30 m² große Wohn- und Essbereich ist das Herzstück der Wohnung...
Weitere Informationen
Sonstiges
Info: Anzahl Etagen: 4
Die Eigentumswohnung richtet sich an Käufer, die ein hochwertiges und modernes Zuhause suchen. Die Wohnung ist vermietet. Zudem bietet die Wohnung Potenzial für individuelle Gestaltungsmöglichkeiten, um sie ganz nach Ihren Wünschen zu gestalten. Bitte beachten Sie, dass rechtliche...
Anbieter der Immobilie
Fair-Lokal.Immobilien
Putzbrunner Str. 163b, 85521 Ottobrunn

Online-ID: 2nnx75z
Finde Angebote wie dieses
Hier geht es zu unserem Impressum, den Allgemeinen Geschäftsbedingungen, den Hinweisen zum Datenschutz und nutzungsbasierter Online-Werbung.