
Förster & Hilms Immobilien GmbH
Herr Arne Meyer
040 ···
Nr. anzeigenPreise & Kosten
Provision für Käufer
3% vom Kaufpreis inkl. 19% MwSt.
Lage
Das Haus befindet sich mitten einer der begehrtesten Wohnlagen Hamburgs, im westlichen Teil von Blankenese.
Die Lage verbindet Ruhe und familienfreundliches Wohnen mit kurzen Wegen in den Ortskern. Liebe Familien mit Kindern -
zentraler kann man kaum leben: Sämtliche Schulen und viele Kindergärten sind bequem zu Fuß...
Das Haus
Kategorie
Einfamilienhaus
Baujahr
1934
Bezug
sofort
Energie & Heizung
Warum sehe ich diese Anzeige? – Du siehst diese Anzeige basierend auf Ihrer Navigation auf unserer Website und den Suchkriterien, die du verwendet hast.
Energieausweistyp
Bedarfsausweis
Gebäudetyp
Wohngebäude
Baujahr laut Energieausweis
1934
Wesentliche Energieträger
Gas
Effizienzklasse
H
Endenergiebedarf
381,00 kWh/(m²·a)
Weitere Energiedaten
Energieträger
Gas
Heizungsart
Zentralheizung
Details
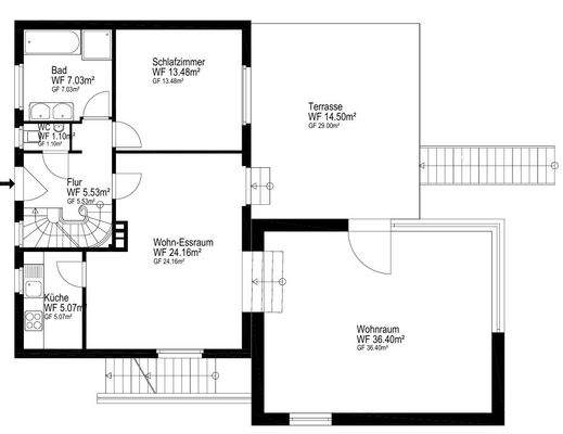
Objektbeschreibung
Dieses Einfamilienhaus aus den Jahren 1934/1935, welches 1969 um einen Anbau erweitert wurde, liegt äußerst ruhig in der zweiten Reihe und ist über eine eigene Zufahrt zu erreichen.
Das Haus besitzt mit etwa 151 m² Wohnfläche und einem sonnigen, 787 m² großen Grundstück ideale Voraussetzungen für ein...
Anbieter der Immobilie
Online-ID: 2nnw85x
Finde Angebote wie dieses
Hier geht es zu unserem Impressum, den Allgemeinen Geschäftsbedingungen, den Hinweisen zum Datenschutz und nutzungsbasierter Online-Werbung.