

Wolf-Haus-GmbH Alexander Reichhardt
Herr/Frau Alexander Reichhardt
064 ···
Nr. anzeigenPreise & Kosten
Provision für Käufer
provisionsfrei
Lage
Sonniges ebenes voll erschlossenes Grundstück Ortsrand in Trohe
Das Haus
Kategorie
Einfamilienhaus
Baujahr
2026
Bezug
02.01.2027
Energie & Heizung
Warum sehe ich diese Anzeige? – Du siehst diese Anzeige basierend auf Ihrer Navigation auf unserer Website und den Suchkriterien, die du verwendet hast.
Weitere Energiedaten
Haustyp
Fertighaus, KfW 40
Energieträger
Elektro
Heizungsart
Fußbodenheizung, Luft-/Wasser-Wärmepumpe, Zentralheizung
Details
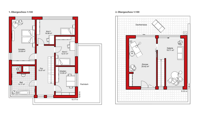
Objektbeschreibung
Ihr ökologisches Fertighaus Luxus pur, frei geplant und wunderschön, Ihre Bastion Ihr Zuhause...energieeffizient, nachhaltig ökologisch ein Leben lang...WOLF-Haus...
Wir machen Sie zum Eigenheimbesitzer, mit einer individuellen Architekturplanung genauso wie Sie es sich wünschen. Als Familienunternehmen in vierter...
Ausstattung
Ihr ökologisches Wolf-Haus im höchsten Standard.
Im Lieferumfang enthalten sind …inkl.
Energiesparwand Öko-Line, U-Wert von 0,115 W/m²K – Diffusionsoffen!
inkl. Bodenplatte
inkl. Fenster 3-fach Verglasung
inkl. Natursteinfensterbänke innen und außen
inkl. Innenwände bereits in Qualitätsstufe Q2 gespachtelt...
Anbieter der Immobilie
Wolf-Haus-GmbH Alexander Reichhardt
Wiesenstraße 32, 35315 Homberg (Ohm)

Online-ID: 2nnvj5p
Finde Angebote wie dieses
Hier geht es zu unserem Impressum, den Allgemeinen Geschäftsbedingungen, den Hinweisen zum Datenschutz und nutzungsbasierter Online-Werbung.